EasyManua.ls Logo

Svan SVCC1660B - Instalación

Svan SVCC1660B
28 pages
Print Icon
To Next Page IconTo Next Page
To Next Page IconTo Next Page
To Previous Page IconTo Previous Page
To Previous Page IconTo Previous Page
Loading...
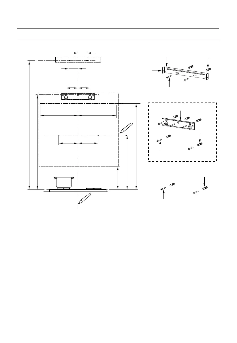
INSTALACIÓN
PERFORACIÓN DE PARED Y FIJACIÓN DE SOPORTE
Como primer paso, proceda con los siguientes dibujos:
Una línea vertical hasta el techo o hasta el límite superior, en el centro del área en la que se
colocará la campana.
Una línea horizontal A a 1270 - 1560 mm por encima de la parte superior de la cocina.
Una línea horizontal B a un mínimo de 887 (840 opcional) mm por encima de la parte superior de
la cocina.
Una línea horizontal C a un mínimo de 717 mm por encima de la parte superior de la cocina.
Puntos de marca:
Marque un punto (1) en la línea horizontal A, 40 mm a la derecha de la línea de referencia
vertical.
Repita esta operación en el otro lado, verificando que las dos marcas estén niveladas.
Marque un punto (2) en la línea horizontal B, 80 (135 opcional) mm a la derecha de la línea de
referencia vertical.
Repita esta operación en el otro lado y en la línea de referencia vertical, verificando que
Se nivelan tres marcas.
Opcional
(Opcional)
40
21
A
(1)
11
40
12
80
80
B
(2)
10
B
20
135
135
C
(3)
11
112.5
112.5
10
11
10
1270 - 1560
887
530
717
840
ES-5

Related product manuals