EasyManua.ls Logo

Sylvania SRC2109E - Preparation for Use

Sylvania SRC2109E
32 pages
Print Icon
To Next Page IconTo Next Page
To Next Page IconTo Next Page
To Previous Page IconTo Previous Page
To Previous Page IconTo Previous Page
Loading...
- 9 - EN
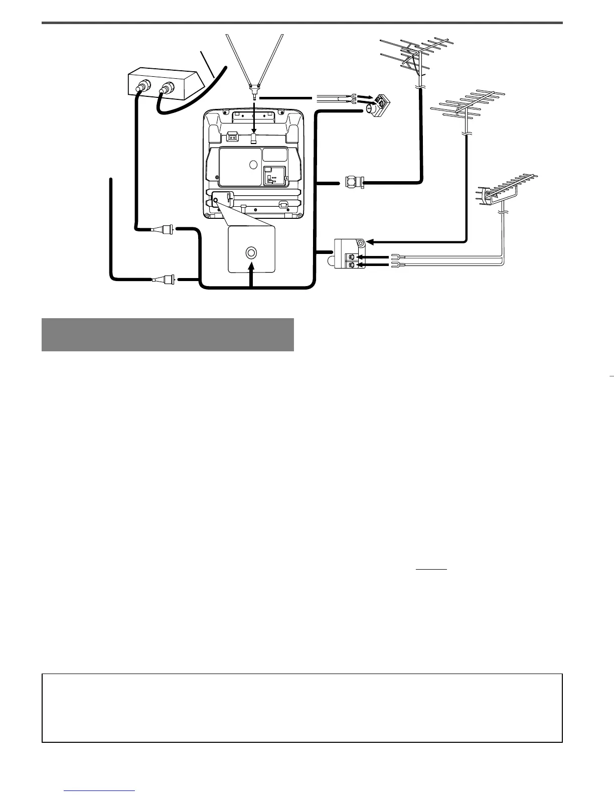
9J27
ANTENNA/CABLE
CONNECTIONS
DIPOLE ANTENNA HOOK UP
1. Push the stem of the Dipole Antenna (accessory)
into the hole for antenna at the back of TV/VCR.
2. Connect the flat twin-lead cable from the Dipole
Antenna to the 300/75 ohm Matching Adapter
(accessory).
3. Plug the Matching Adapter to ANT terminal of
TV/VCR as shown in drawing.
For the best reception, extend the Dipole Antenna
and adjust its length and position. (Avoid handling
the top section when making adjustments.)
NOTE: If it is difficult to get good reception with
the indoor antenna, the use of an outdoor antenna is
recommended. Before an outdoor antenna is connect-
ed to the set, the indoor antenna should be discon-
nected.
CABLE WITHOUT CONVERTER/
DESCRAMBLER BOX
Use this connection if your cable system connects
directly to your TV/VCR without a converter box.
By using this connection you can:
1) Use the TV/VCR remote to select channels.
2) Program one or more unscrambled channels for
Automatic Timer Recording.
NOTE: This unit will ONLY record and view the
same channel.
VHF/UHF SEPARATE ANTENNAS
In some areas it will be necessary to use an outdoor
antenna.
VHF/UHF COMBINED ANTENNA
A VHF UHF 75 ohm combination antenna can be
connected to ANT terminal.
Note to CATV system installer:
This reminder is provided to call the CATV system installers attention to Article 820-40 of the NEC that
provides guidelines for proper grounding and, in particular, specifies that the cable ground shall be connect-
ed to the grounding system of the building as close to the point of cable entry as practical.
Antenna/Cable Connections Continued on the Next Page.
ANT.
IN
OUT
ANT
DC 13.2V
AC 120V
Dipole Antenna
(Supplied)
VHF/UHF Antenna
(Not supplied)
VHF/UHF
Combiner
(Not supplied)
Flat twin-lead cable
UHF Antenna
(Not supplied)
VHF Antenna
(Not supplied)
From
Cable System
75-ohm Coaxial
Cable (Not
supplied)
Satellite Box or
Cable Box
(Not supplied)
From Cable System or
Satellite Dish
or
or
or
or
Flat twin-lead cable
PREPARATION FOR USE
Fig.4

Related product manuals