EasyManua.ls Logo

SystemAir VSC Series - Page 7

SystemAir VSC Series
19 pages
To Next Page IconTo Next Page
To Next Page IconTo Next Page
To Previous Page IconTo Previous Page
To Previous Page IconTo Previous Page
Loading...
7
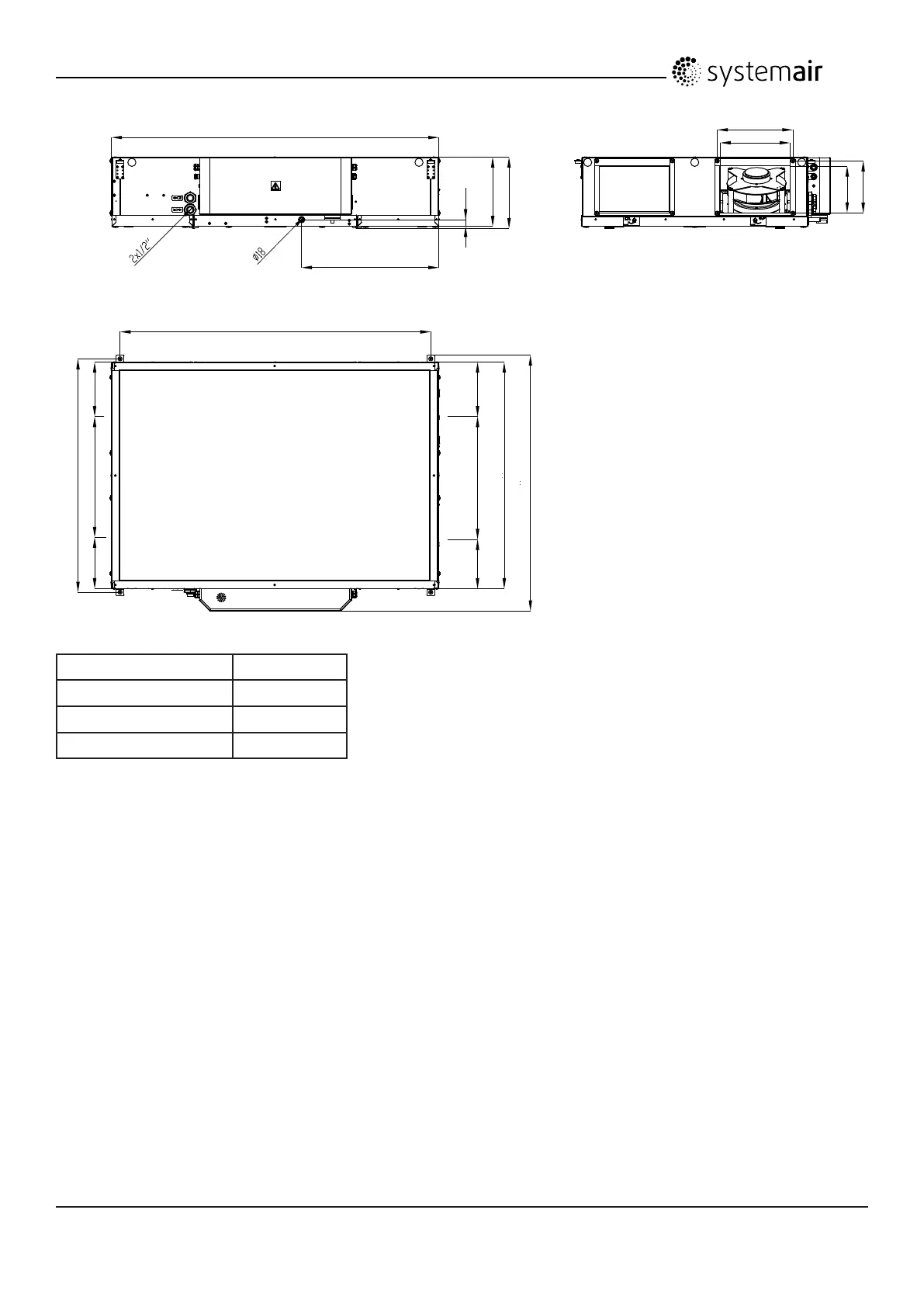
Topvex FC
Compact Air Handling Unit
Operation and Maintenance Instructions
Document in original language
125918-EN_GB
2015-03-16 A001
Operation and Maintenance Instructions
Systemair AB
2000
1728
1600
735 433433
433
1630
735433
21
460
470
324
300
902
624
600
1630
Model Weight, kg
VSC 2000 240
VSC 2000 EL 245
VSC 2000 HW 245

Related product manuals