EasyManua.ls Logo

Taco SR506-EXP-4 - Device Features and Diagnostics; Device Features; External Diagnostics; Wiring and Expansion

Default Icon
2 pages
Print Icon
To Previous Page IconTo Previous Page
To Previous Page IconTo Previous Page
Loading...
CONTROLS MADE EASY.
®
TACO, INC., 1160 Cranston Street, Cranston, RI 02920 Telephone: (401) 942-8000 FAX: (401) 942-2360.
TACO (Canada), Ltd., 8450 Lawson Road, Unit #3, Milton, Ontario L9T 0J8. Telephone: 905/564-9422. FAX: 905/564-9436.
Visit our web site at: http://www.taco-hvac.com
Printed in USA
Copyright 2010
TACO, Inc.
Taco, Inc. will repair or replace without charge
(at the company’s option) any product or part
which is proven defective under normal use
within three (3) years from the date of start-up or
three (3) years and six (6) months from date of
shipment (whichever occurs first).
In order to obtain service under this warranty, it
is the responsibility of the purchaser to promptly
notify the local Taco stocking distributor or Taco
in writing and promptly deliver the subject prod-
uct or part, delivery prepaid, to the stocking dis-
tributor. For assistance on warranty returns, the
purchaser may either contact the local Taco
stocking distributor or Taco. If the subject prod-
uct or part contains no defect as covered in this
warranty, the purchaser will be billed for parts
and labor charges in effect at time of factory
examination and repair.
Any Taco product or part not installed or operat-
ed in conformity with Taco instructions or which
has been subject to misuse, misapplication, the
addition of petroleum-based fluids or certain
chemical additives to the systems, or other
abuse, will not be covered by this warranty.
If in doubt as to whether a particular substance
is suitable for use with a Taco product or part, or
for any application restrictions, consult the
applicable Taco instruction sheets or contact
Taco at [401-942-8000].
Taco reserves the right to provide replacement
products and parts which are substantially sim-
ilar in design and functionally equivalent to the
defective product or part. Taco reserves the
right to make changes in details of design, con-
struction, or arrangement of materials of its
products without notification.
TACO OFFERS THIS WARRANTY IN LIEU OF
ALL OTHER EXPRESS WARRANTIES. ANY
WARRANTY IMPLIED BY LAW INCLUDING
WARRANTIES OF MERCHANTABILITY OR FIT-
NESS IS IN EFFECT ONLY FOR THE DURATION
OF THE EXPRESS WARRANTY SET FORTH IN
THE FIRST PARAGRAPH ABOVE.
THE ABOVE WARRANTIES ARE IN LIEU OF
ALL OTHER WARRANTIES, EXPRESS OR
STATUTORY, OR ANY OTHER WARRANTY
OBLIGATION ON THE PART OF TACO.
TACO WILL NOT BE LIABLE FOR ANY SPE-
CIAL, INCIDENTAL, INDIRECT OR CONSE-
QUENTIAL DAMAGES RESULTING FROM THE
USE OF ITS PRODUCTS OR ANY INCIDENTAL
COSTS OF REMOVING OR REPLACING
DEFECTIVE PRODUCTS.
This warranty gives the purchaser specific
rights, and the purchaser may have other rights
which vary from state to state. Some states do
not allow limitations on how long an implied
warranty lasts or on the exclusion of incidental
or consequential damages, so these limitations
or exclusions may not apply to you.
LIMITED WARRANTY STATEMENT
BOILER
SWITCH SETTINGS
Master/Slave: Slave
Reset/Normal: Normal
Priority Zone: Off
120 VAC INPUT
H
N
SWITCH SETTINGS
Master/Slave: Master
Reset/Normal: Normal
Priority Zone: On
TO: "TT" ON BOILER
PRIMARY
CIRCULATOR
(OPTIONAL)
TO: "TT" ON BOILER WITH
DHW "TT" INPUT
MASTER
PRIMARY
CIRCULATOR
(OPTIONAL)
SLAVE
THERMOSTATS
T
SIX ZONE
EXPANDABLE SWITCHING RELAY
POWER
CONTROLS
120 VAC CIRCULATORS
ZC
INPUT
120 VAC
ZONE 1 ZONE 2
ZONE 3
ZONE 4 ZONE 5 ZONE 6
ZONE1
ZONE2
ZONE3
ZONE4
ZONE5
SR 506-EXP-4
FUSE
6 AMP
FUSE
6 AMP
FUSE
6 AMP
FUSE
6 AMP
FUSE
6 AMP
FUSE
6 AMP
FUSE
6 AMP
FUSE
6 AMP
NET
EXPANSIONMAIN PRIORITY
XX
XX
AB
CRW
CRW
CRW
CRW
CRW
CRW
C
12
END SWITCH THERMOSTATS (24 VAC)
PRIORITY
N/C
PRIMARY
120 VAC
ZR
H H N H N H NH NH NH NH NH NH N H
SLAVE
PRIORITY ON
RESET
PRIMARY PUMP ON
POST PURGE ON
PRIORITY PROTECT ON
PUMP EXERCISE ON
30 SEC/2 WK
MASTER
OFF
OFF
OFF
OFF
OFF
NORMAL
LOW LIMIT (ZC) ON OFF
4 MIN/24 HOUR
ZONE6 ZONE6
PRIORITY
ACCESSORY
PORT
ZONE 2
POWER
ZONE 1
ZONE 3
ZONE 4
ZONE 5
ZONE 6
LED
INDICATORS
SIX ZONE
EXPANDABLE SWITCHING RELAY
POWER
CONTROLS
120 VAC CIRCULATORS
ZC
INPUT
120 VAC
ZONE 1 ZONE 2
ZONE 3
ZONE 4 ZONE 5 ZONE 6
ZONE1
ZONE2
ZONE3
ZONE4
ZONE5
SR 506-EXP-4
FUSE
6 AMP
FUSE
6 AMP
FUSE
6 AMP
FUSE
6 AMP
FUSE
6 AMP
FUSE
6 AMP
FUSE
6 AMP
FUSE
6 AMP
NET
EXPANSIONMAIN PRIORITY
XX
XX
AB
CRW
CRW
CRW
CRW
CRW
CRW
C
12
END SWITCH THERMOSTATS (24 VAC)
PRIORITY
N/C
PRIMARY
120 VAC
ZR
H H N H N H NH NH NH NH NH NH N H
SLAVE
PRIORITY ON
RESET
PRIMARY PUMP ON
POST PURGE ON
PRIORITY PROTECT ON
PUMP EXERCISE ON
30 SEC/2 WK
MASTER
OFF
OFF
OFF
OFF
OFF
NORMAL
LOW LIMIT (ZC) ON OFF
4 MIN/24 HOUR
ZONE6 ZONE6
PRIORITY
ACCESSORY
PORT
ZONE 2
POWER
ZONE 1
ZONE 3
ZONE 4
ZONE 5
ZONE 6
LED
INDICATORS
THERMOSTATS
T
Features:
Front External Indicator Lights
Ideal for Retrofitting
Primary Circulator Output
Simplified Wiring
Plug-In Power Controls
Sealed Relays
Compact Design
Fuse Protected
100% Factory Tested
Two Isolated End Switches
Expandable to 20 Zoning Panels (120
zones if all are 6 zone panels)
Contractor Friendly PC Board Layout
Universal Thermostat Compatibility
UL Approved
24 volt Power Input or Output
Terminal
Extended 3 Year Warranty
Made in the USA
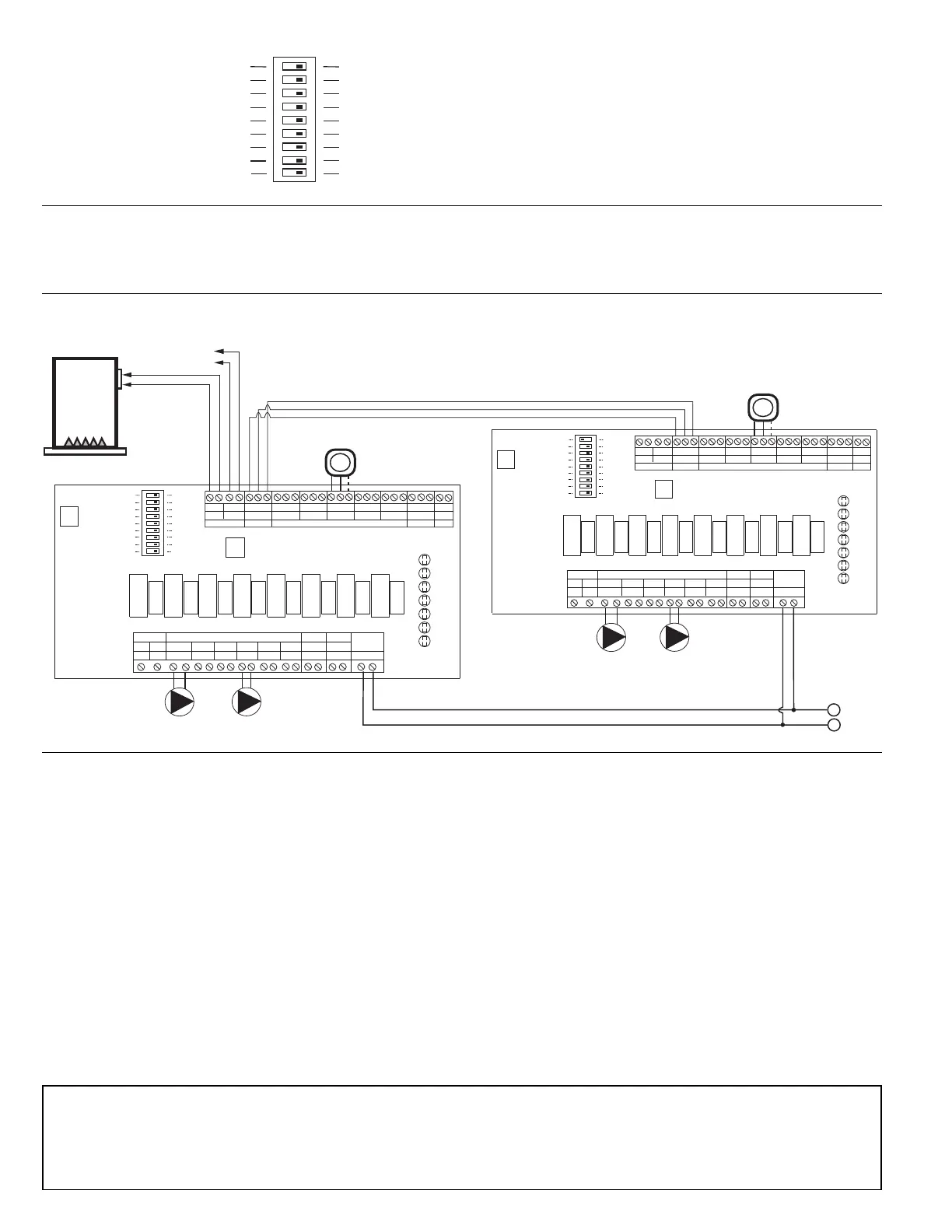
2 Expandable Switching Relays Connected Together
SLAVE
ZONE PRIORITY ON
RESET
PRIMARY PUMP FUNCTION ON
POST PURGE ON
PRIORITY PROTECTION ON
PUMP EXERCISE ON
30 SEC/2 WK
MASTER
OFF
NORMAL
OFF
OFF
OFF
OFF
4 MIN/24 HOUR
LOW LIMIT (ZC) ON OFF
Dip Switch Settings:
This device complies with part 15 of the FCC Rules. Operation is subject to the follow-
ing two conditions: (1) This device may not cause harmful interference, and (2) this
device must accept any interference received, including interference that may cause
undesired operation.
External Diagnostics: Externally visible lights show full functionality of the
switching relay. The green light should always be on, indicating that power is
connected. When the thermostat calls for heat, both the appropriate circulator
and red indicating light are energized.

Related product manuals