EasyManua.ls Logo

TCM FB25-8 - Charger Operation

TCM FB25-8
259 pages
Print Icon
To Next Page IconTo Next Page
To Next Page IconTo Next Page
To Previous Page IconTo Previous Page
To Previous Page IconTo Previous Page
Loading...
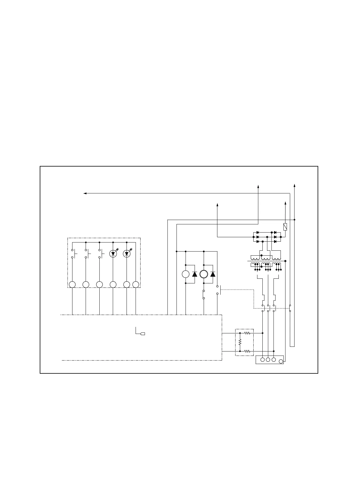
1.1.4 CHARGER OPERATION
(1) When the power supply switch to the battery charger is turned on, the charging circuit inside
the LCD panel is activated.
(2) When the START button is pressed, a circuit consisting of the CM contactor, thermal relay TH
and CN1-8 terminals of the LCD panel is completed to activate the CM contactor.
(3) When the CM contactor is activated to connect the power supply to the transformer, the LED1
turns on and the fail timer starts counting down the time and thus charging operation starts.
The fail timer is usually set to 15 hours for normal charge.
(4) When the battery voltage rises up to the preset voltage, the control circuit inside the LCD
panel detects the voltage level and then timer starts counting down the time.
This timer is automatically set to a proper amount of time according to how much the battery
has been discharged.
(5) When the time set to the timer expires, the CM contactor opens to nishing charging.
M N L M N L M N L
TRANS
U V W
TH
CH
R S T
E
AC INPUT
R01
R03
R02
RESISTOR
ASS'Y
SR
(START)
PB1
(STOP)
PB2
(SUPER
PB3
(EQUL)
(CHARGE)
LED2
LED1
EQUL)
SWITCH PANEL ASS'Y
(CHARGE)
PO
TH
CM
CM
S1 S2 S3 L1 L2 COM
LCD PANEL ASS'Y
WR 205
WY 206
WG 209
LB 201
RB 202
RG 203
YG 208
BW 211
LY 212
W 213
W 207
Gy
220
LR
204
RY 101
RL 100
CN1-13
CN1-14
CN1-15
CN1-5
CN1-16
CN1-4
CN3-5
CN1-18
CN1-8
CN3-6
CN3-8
CN3-4
CN1-11
F6
+5V
ࡃ࠶࠹࡝߳ࡃ࠶࠹࡝߳
Fig. 1.9 Charging Circuit
to CONTROLLER
to BATTERY TERMINAL (-)
to FUSE (F4)
to KEY SWITCH
to TRANSFORMER

Table of Contents

Related product manuals