EasyManua.ls Logo

Technibel MCAV77R5VAA - Page 35

Technibel MCAV77R5VAA
62 pages
Print Icon
To Next Page IconTo Next Page
To Next Page IconTo Next Page
To Previous Page IconTo Previous Page
To Previous Page IconTo Previous Page
Loading...
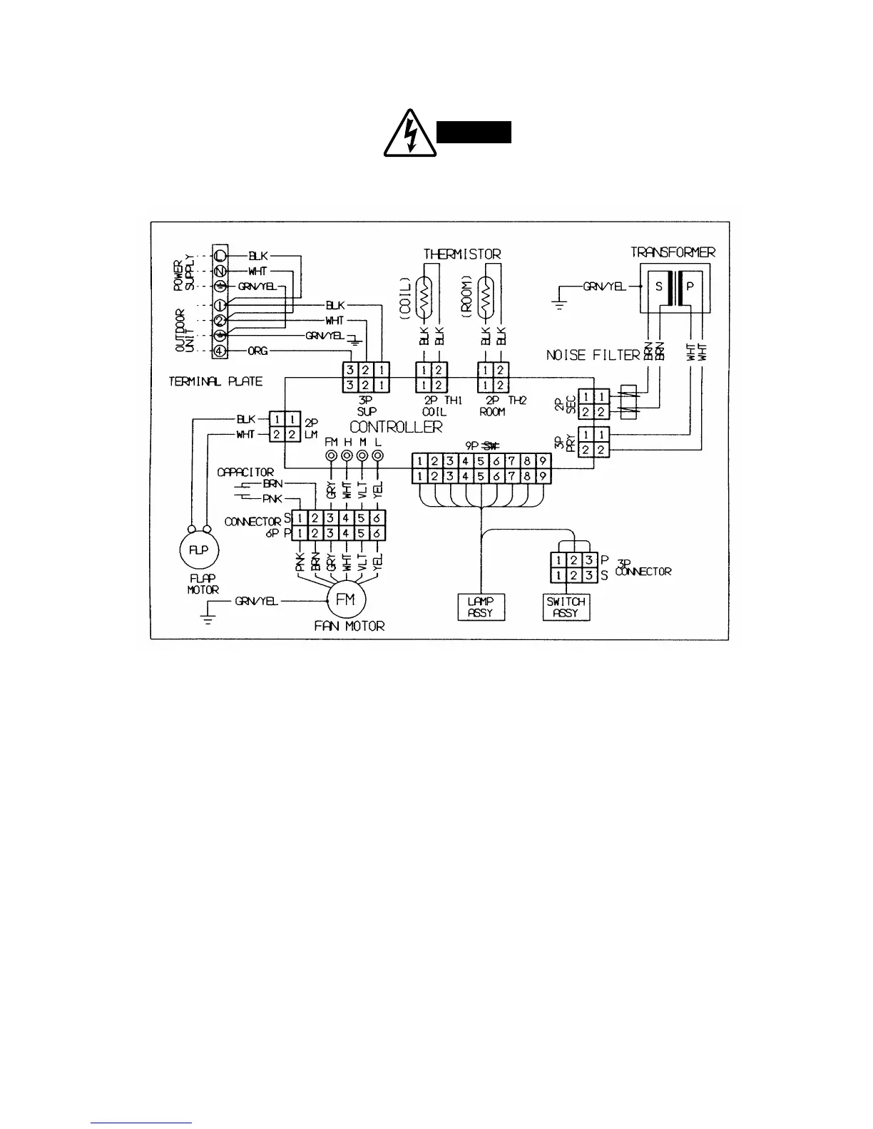
To avoid electrical shock hazard, be sure to
disconnect power before checking, servicing
and/or cleaning any electrical parts.
WARNING
Indoor Unit KPA128R5TAA
.
32

Related product manuals