EasyManua.ls Logo

Technics SE-HD501 - Page 42

Technics SE-HD501
46 pages
Print Icon
To Next Page IconTo Next Page
To Next Page IconTo Next Page
To Previous Page IconTo Previous Page
To Previous Page IconTo Previous Page
Loading...
JK401
JK402
Lch OUT
A.GND
Rch OUT
MUTE
POWER
+B(13V )
LED CNT
CT
D.GND
B( 13V)
+B(15V)
+B(10V)
KEY SE
JOG A
JOG B
+B(5.6V)
B( 30V)
FL1
FL2
SYNC
+B(13V)
+B(10V)
A.GND
Lch IN
Rch IN
Lch IN
Rch OUT
Lch OUT
Rch IN
CD REQ
M.GND
D.GND
CS
SCLK
DATA
TAPE REQ
SYNC
CK SPD
NC
(D.GND)
TP304
(CT)
TP303
CB
TP311
(A.GND)
TP302
Q401
2SD2137PQTA
REGULATOR
Q402
2SB1417PQTA
REGULATOR
D
Q
P
O
N
M
L
K
J
I
H
G
F
E
B
C
R
S
T
U
V
W
X
Y
Z
A
b
a
TP305
TP310
TP309
TP308
1
2
3
4
5
6
7
8
9
10
11
12
13
14
15
16
17
18
19
1
2
3
4
5
6
7
8
9
10
11
12
13
14
15
16
20
17
18
19
R401
1/4W4.7
C407
16V100
C405
10V47
C401
25V100
D483
MA719TA
D484
MA719TA
R403
1K
C403
0.01
C408
16V100
D401
MA4075HTA
D402
MA4075HTA
C406
10V47
R404
1K
C404
0.01
C402
25V100
R402
1/4W4.7
C409 0.01
C482 0.1
R482 100
R350 2.7K
R349 2.7K
R354 4.7K
R353 4.7K
R346 1K
R345 1K
R347 10K
R348 10K
R351 8.2K
R352 8.2K
R355 10K
R356 10K
C353 100P
C354 100P
C357 100P
C358 100P
C355 100P
C356 100P
R359 10K
R360 10K
R363 10K
R364 10K
C361 100P
C362 100P
C359 100P
C360 100P
R358
1K
R357
1K
R362
4.7K
R361
4.7K
D482
MA719TA
D481
MA719TA
R481
100
C481
1
F
A
E301
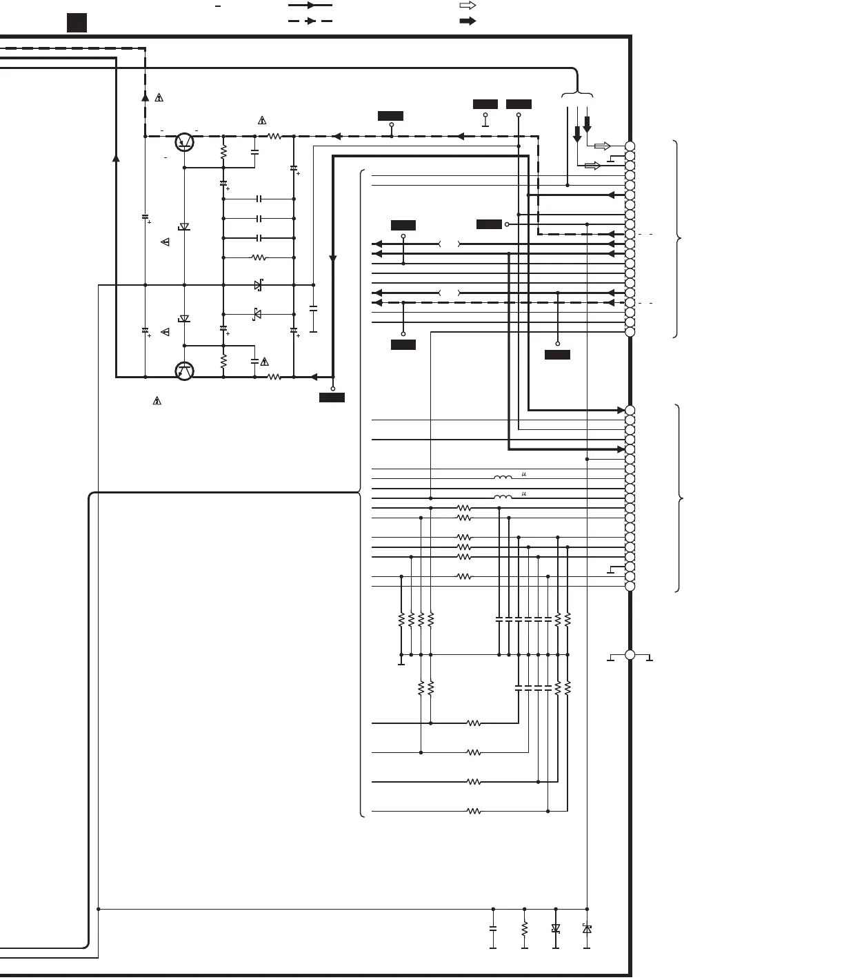
SCHEMATIC DIAGRAM 9
MAIN CIRCUIT
C483 0.047
C484 0.047
To AMPLIFIER
POWER SUPPLY
CIRCUIT
To CD PLAYER
MAIN CIRCUIT/
CASSETTE DECK
MAIN CIRCUIT
L541 10 H
L542 10
H
:AM SIGNAL LINE
:FM SIGNAL LINE:NEGATIVE VOLTAGE LINE
:POSITIVE VOLTAGE LINE
5.6V
14.3V7.2V
7.8V
15.4V7.2V
7.8V
15V

Related product manuals