EasyManua.ls Logo

Techno Block AT series - Page 30

Default Icon
Print Icon
To Next Page IconTo Next Page
To Next Page IconTo Next Page
To Previous Page IconTo Previous Page
To Previous Page IconTo Previous Page
Loading...
30
6 Installation de la machine
6.1 Signalisations
Le constructeur a prévu l’apposition d’écriteaux d’avertissement et attention avec les signalisations figurant
dans le tableau récapitulatif
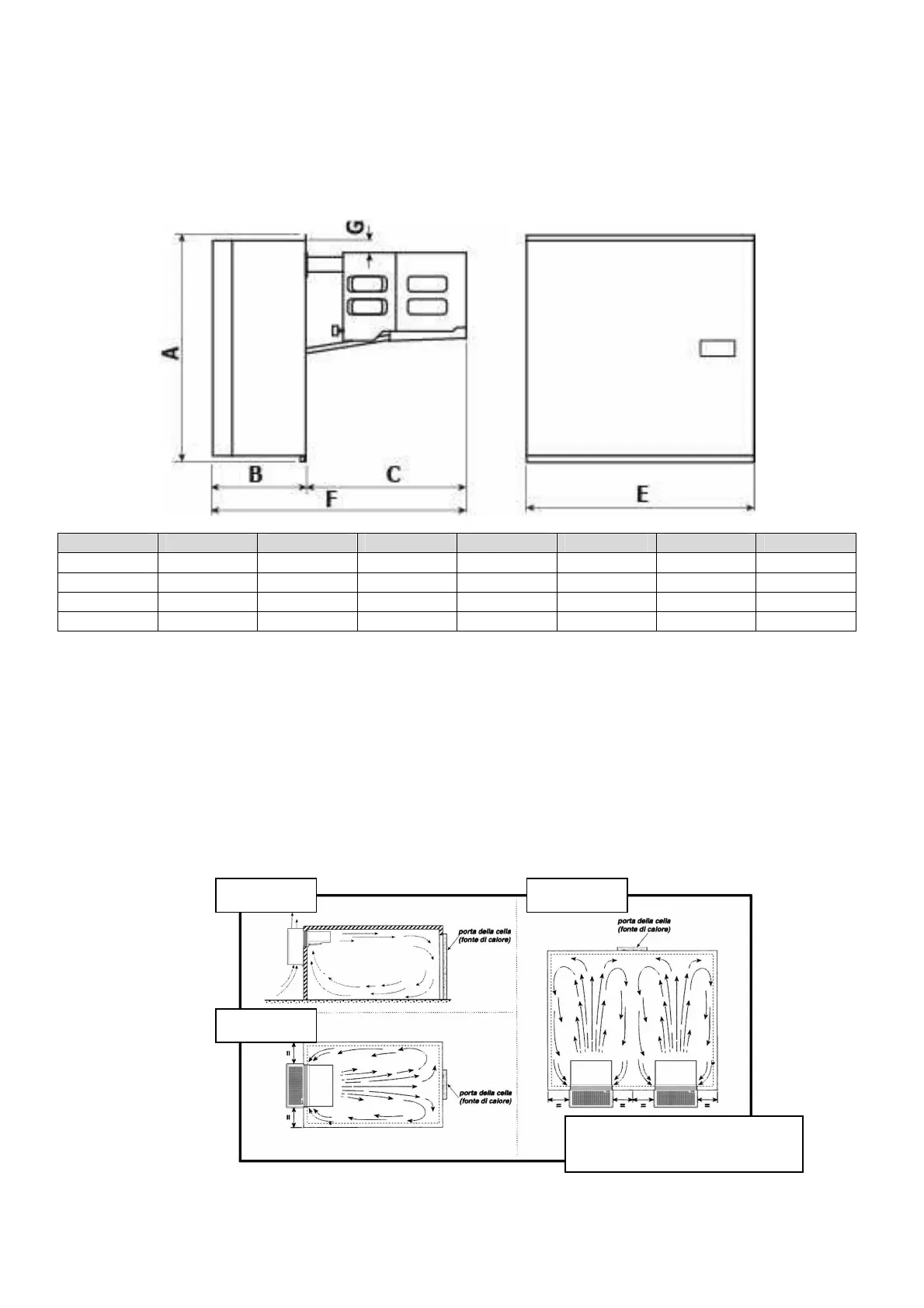
6.2 Encombrement de la machine
Mod. A B C D E F G
AT1 767 310 535 485 845 40
AT2 767 310 535 785 845 40
AT3 860 400 670 760 1070 50
AT4 860 450 670 760 1120 50
6.3 Mise en place de la machine
Pour obtenir un fonctionnement optimal de l'unité nous conseillons de :
A) Placer la machine dans une pièce ayant un bon rechange d'air et éloignée de sources de forte chaleur.
B) Ouvrir la chambre le moins possible.
C) S'assurer que l'unité ait la possibilité d'une bonne aspiration et d'une expulsion de l'air toute aussi
bonne.
D) Brancher au dégagement de l'eau de condensation se trouvant sur la partie inférieure de l'unité, un
tuyau pour l'évacuation de l'eau.
N.B.: Les unités AT sont équipées d’un système d'évaporation de l'eau de condensation, le tuyau
d’évacuation n’est qu’une précaution en cas d'anomalies de fonctionnement ou d'utilisation
Solution 1
Solution 3
Solution 2
Installation sur una chambre
avec plusieurs unités

Table of Contents