EasyManua.ls Logo

Techno Block AT series - Page 54

Default Icon
Print Icon
To Next Page IconTo Next Page
To Next Page IconTo Next Page
To Previous Page IconTo Previous Page
To Previous Page IconTo Previous Page
Loading...
54
6. Instalación del equipo
6.1 Indicaciones
El Fabricante ha aplicado el uso de etiquetas de advertencia con las indicaciones recogidas en la tabla
resumen
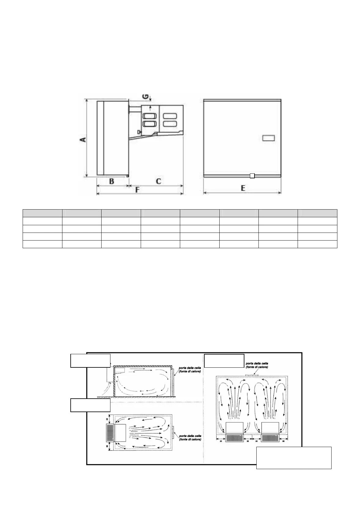
6.2 Dimensiones del equipo
Mod. A B C D E F G
AT1 767 310 535 485 845 40
AT2 767 310 535 785 845 40
AT3 860 400 670 760 1070 50
AT4 860 450 670 760 1120 50
6.3 Colocación del equipo
Para obtener el mejor funcionamiento posible del equipo le aconsejamos que:
A) Coloque el equipo en un entorno que disponga de un buen cambio de aire y lejos de fuentes excesivas
de calor.
B) Abra la cámara lo mínimo indispensable.
C) Cerciórese de que el equipo cuenta con una buena aspiración, así como de una buena expulsión del aire
movido.
D) Conecte un tubo para la evacuación del agua en el desagüe del agua de condensación, situado en la
parte inferior del equipo.
N.B.: Las unidades AT disponen de un sistema de evaporación del agua de condensación, el desagüe es
solo una precaución en caso de anomalías de funcionamiento o de uso.
Solución 1
Soluci
ón 2
Solución 3
Instalación en cámara
con más de una unidad

Table of Contents