EasyManua.ls Logo

Techno Block AT series - Page 6

Default Icon
Print Icon
To Next Page IconTo Next Page
To Next Page IconTo Next Page
To Previous Page IconTo Previous Page
To Previous Page IconTo Previous Page
Loading...
6
6 Installazione della macchina
6.1 Segnalazioni
Il costruttore ha previsto l'apposizione di cartelli di avvertenza e di attenzione con le segnalazioni riportate
nella tabella riassuntiva
6.2
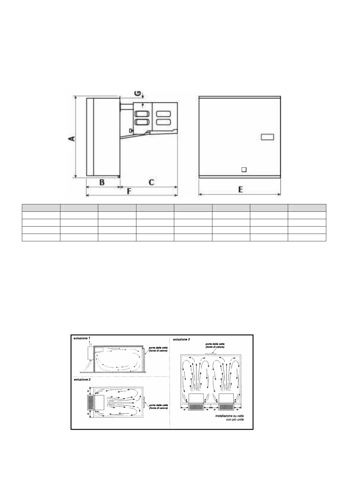
Ingombri della macchina
Mod. A B C D E F G
AT1 767 310 535 485 845 40
AT2 767 310 535 785 845 40
AT3 860 400 670 760 1070 50
AT4 860 450 670 760 1120 50
6.3 Posa in opera della macchina
Per ottenere un funzionamento ottimale dell'unità si consiglia di:
A) Posizionare la macchina in ambiente con un buon ricambio d’aria e lontana da elevate fonti di calore.
B) Aprire la cella il minimo indispensabile
C) Assicurarsi che l'unità abbia la possibilità di una buona aspirazione , e di un'altrettanto buona espulsione
dell'aria movimentata.
D) Collegare allo scarico dell’acqua di condensa, posto nella parte inferiore dell’unità, un tubo per
l’evacuazione dell’acqua.
N.B.: Le unità AT sono dotate del sistema di evaporazione dell’acqua di condensa, lo scarico è solo una
precauzione nel caso di anomalie di funzionamento o di uso.

Table of Contents