EasyManua.ls Logo

Teka NFE3 650 X - 2 Refrigerator

Teka NFE3 650 X
305 pages
Print Icon
To Next Page IconTo Next Page
To Next Page IconTo Next Page
To Previous Page IconTo Previous Page
To Previous Page IconTo Previous Page
Loading...
6 / 26 EN
Refrigerator / User Guide
2 Refrigerator
C
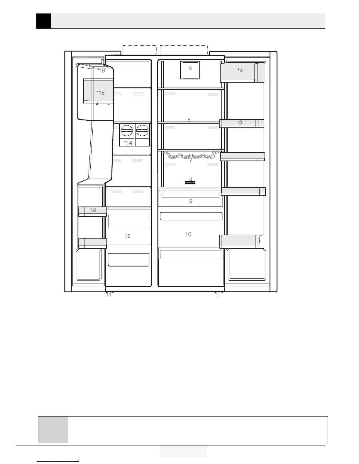
*Optional: Figures in this user guide are schematic and may not be exactly match your product. If your
product does not comprise the relevant parts, the information pertains to other models.
1- Freezer compartment
2- Cooler compartment
3- Fan
4- Butter-cheese compartment
5- Glass shelves
6- Cooler compartment door shelves
7- Bottle shelf
8- Odour filter
9- Zero degree compartment
10- Vegetable bins
11- Adjustable stands
12- Frozen food storing compartments
13- Freezer compartment door shelves
14- Icematics
15- Ice storage box
16- Ice-maker decorative lid
*Optional
2
1
3
*4
5
*6
10
9
12
13
8
*7
*14
*15
*16
1111

Table of Contents

Related product manuals