EasyManua.ls Logo

Telesis BenchMark 200 - BenchMark200 Marking Head Dimensions; Marking Noise and Pin Life; Marking Noise; Pin Life

Telesis BenchMark 200
8 pages
Print Icon
To Next Page IconTo Next Page
To Next Page IconTo Next Page
To Previous Page IconTo Previous Page
To Previous Page IconTo Previous Page
Loading...
BenchMark
®
200/BM470 Marking System
34743A 3 of 8
BENCHMARK200 MARKING HEAD (continued)
Marking Noise
Sound pressure-level tests were conducted on the BenchMark200
Marking System using a Larson-Davis Model 710 sound pressure
meter while dry firing the marker at a 50% duty cycle. The
maximum sound pressure level during the test cycle was measured
at 70.9 dB. The time-weighted average (LEQ) using the 3 db rule
without threshold was 61.8 dB. Typical applications average a
20% to 30% duty cycle where the time-weighted average would
not exceed 70 dB(A).
The sound pressure-level tests were carried out under controlled
conditions, imitating as closely as possible, predicted normal
operation. However, noise level is heavily dependent on the part
being impacted. Conditions such as the material being marked, the
rigidity of the work piece, machine settings, ambient noise, etc.,
may all vary when in operational use. Such variables will alter the
actual noise level.
Despite detailed guidance provided with each machine, variable
operating conditions are beyond the control of Telesis. The
responsibility of establishing safe working levels of use remains
with the end user. Accordingly, you should conduct your own
sound pressure-level tests for your application while marking
actual work pieces.
Pin Life
Pin life depends largely on the type of material being marked, how
hard or abrasive it is, and the required marking depth. On typical
metals with a hardness of Rockwell Rb47, marking at a depth of
.127 mm (.005 in.), carbide pins average approximately 9 million
impressions before needing sharpened.
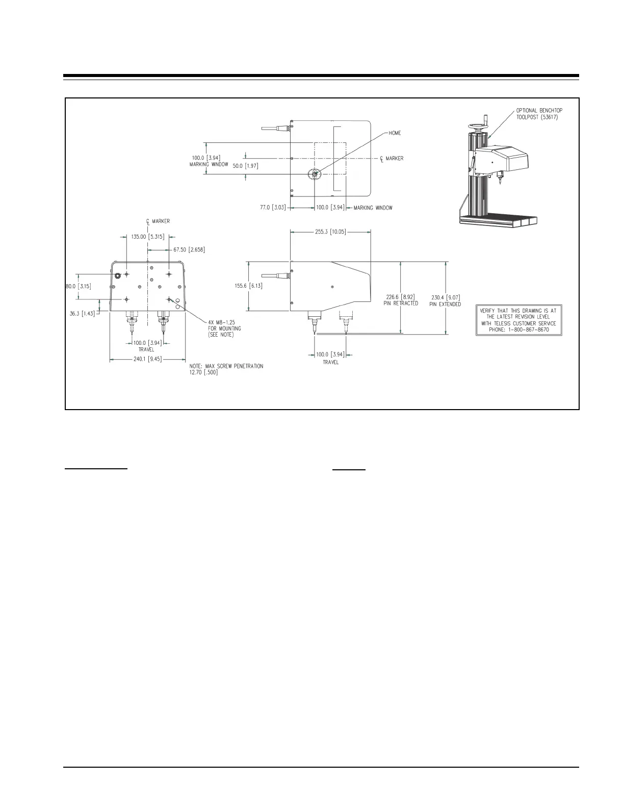
BenchMark200 Marking Head Dimensions

Related product manuals