EasyManua.ls Logo

Telesis TMP4500E - TMC600 Controller Specifications; Integrated Processor; Integrated Monitor; Compliance

Telesis TMP4500E
9 pages
Print Icon
To Next Page IconTo Next Page
To Next Page IconTo Next Page
To Previous Page IconTo Previous Page
To Previous Page IconTo Previous Page
Loading...
4 of 9 78811A
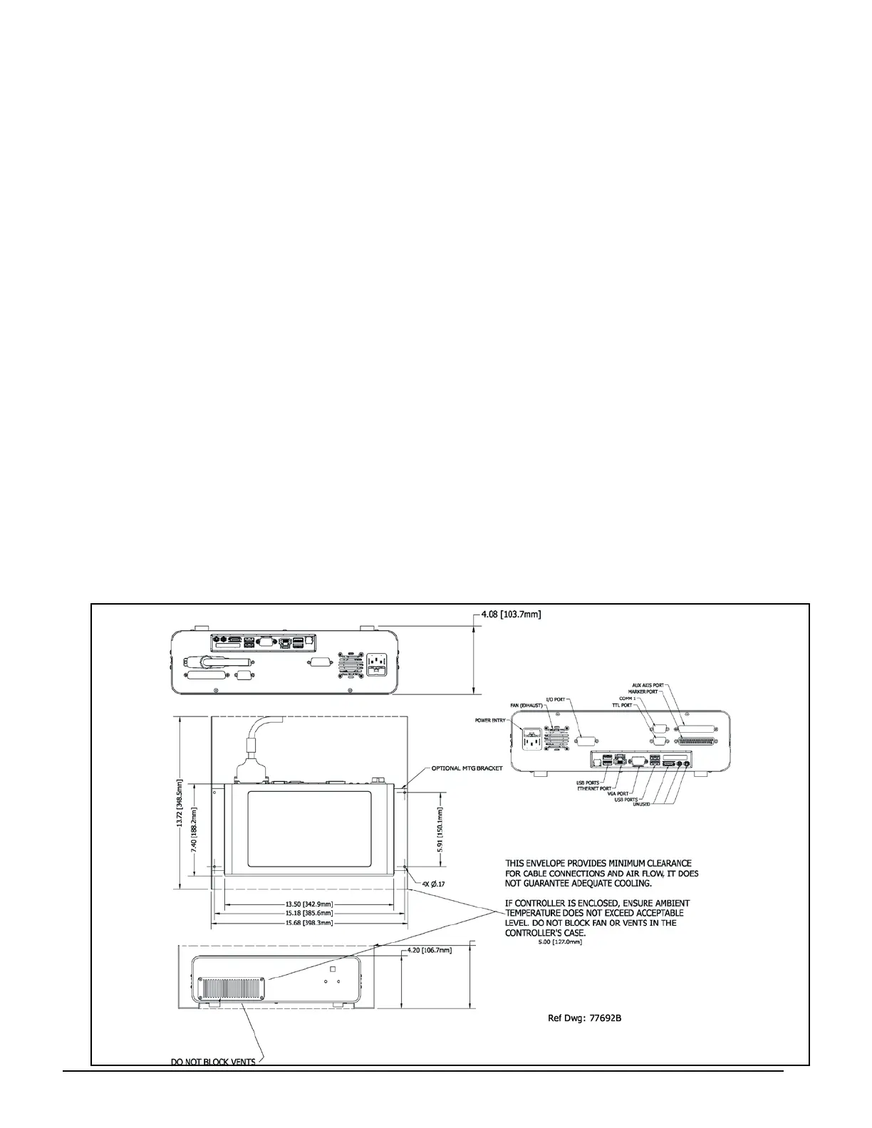
TMC600 CONTROLLER
The TMC600 controller may be installed as a table-top unit,
wall-mounted unit, or panel-mounted unit. All configurations
provide features and connectivity for external communications.
Differences occur only in the mounting configuration.
The TMC600 Controller specifications are subject to change
without prior notice.
Integrated Processor ...... Intel
®
Dual-Core Atom™
Integrated Monitor .......... 10.1 in., color, 1024 x 600,
capacitive touch screen LCD
Compliance ..................... CE
Rating .............................. NEMA 1 (I.P. 30)
Configurations ................ Table-top or wall-mounted
Dimensions ..................... see TMC600 Controller Dimensions
drawing
Weight ............................ 7.00 lb. (3.18 kg) controller only
7.21 lb. (3.28 kg) with wall-mount kit
Operating Temp. ........... 32° to 104° F (0° to 40°C)
Operating Humidity ........ 10% to 80% non-condensing
Power Requirements ..... 115/230 VAC, 3/1.5 amps,
50/60 Hz, single phase
Cooling ............................ Internal, thermostatically controlled fan
Filtering ........................... Integrated, 60 ppi contaminant filter
Communications ...... RS232, TTL, Discrete I/O, TCP/IP, and
USB (for data backup & transfer)
Input Signals ............. Twelve (12) total, optically isolated
8 dedicated, 1 programmable,
3 available
10 VDC minimum voltage
30 VDC maximum voltage
12 to 24 VDC nominal voltage
2.3 mA @ 12VDC nominal current
4.9 mA @ 24VDC nominal current
Output Signals .......... Six (6) total, optically isolated
3 dedicated, 3 available
0.25 amps maximum current
0.50 ohms maximum On resistance
40 VDC maximum line voltage
12 to 24 VDC nominal line voltage

Related product manuals