EasyManua.ls Logo

Terex T25 - Page 36

Terex T25
74 pages
Print Icon
To Next Page IconTo Next Page
To Next Page IconTo Next Page
To Previous Page IconTo Previous Page
To Previous Page IconTo Previous Page
Loading...
Operating Instructions and Parts Manual
36 Terex T25I and T45I Super Quiet Generator
June 2006
REV A
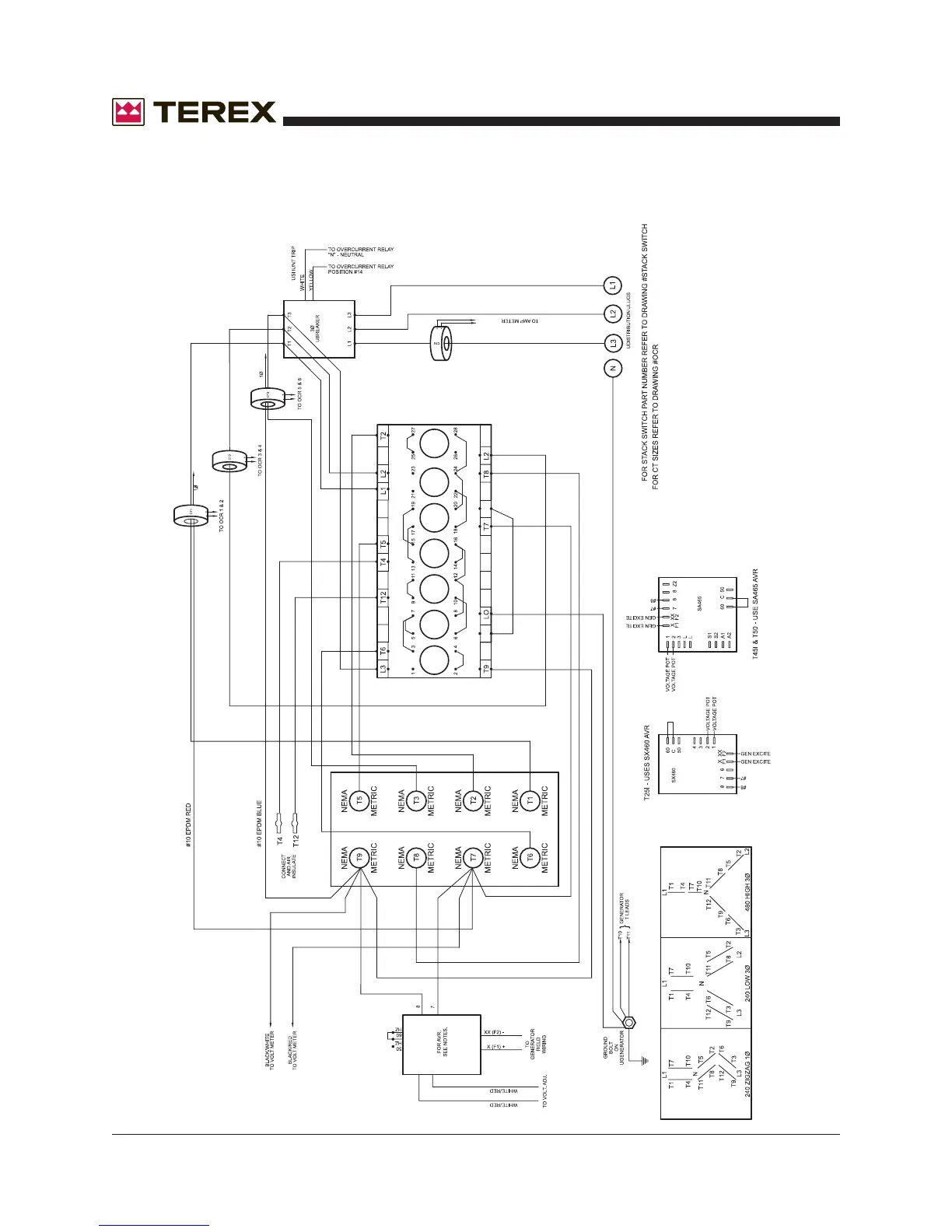
Standard Generator Wiring
for "C" Series
Drawing #ES1000008

Other manuals for Terex T25

Related product manuals