EasyManua.ls Logo

Tesla WF71230T - A Készülék Használata

Tesla WF71230T
144 pages
Print Icon
To Next Page IconTo Next Page
To Next Page IconTo Next Page
To Previous Page IconTo Previous Page
To Previous Page IconTo Previous Page
Loading...
65
HU
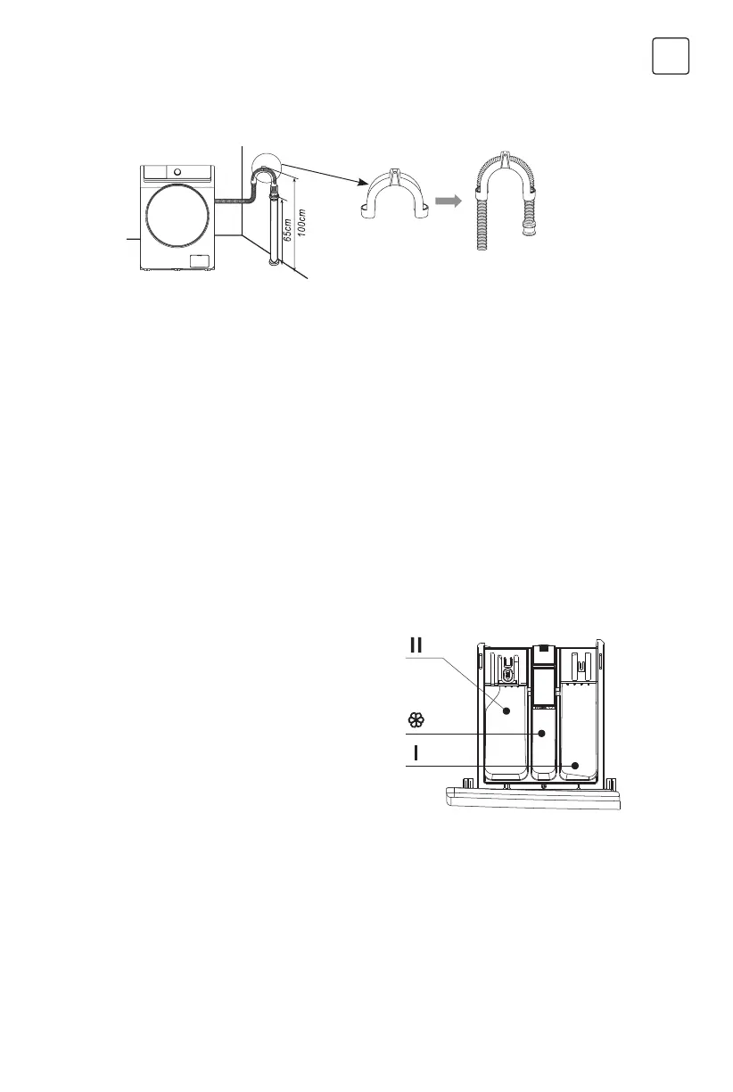
A vízleeresztő cső csatlakoztatása a fali kiálláshoz
A lefolyócsövet 65-100 cm magasságban kell elhelyezni a padló felett, különben a víz visszafolyhat. A
lefolyótömlő vége nem érhet vízbe, különben a vízelvezetés nem lesz megfelelő.
Mosási tippek
Rendszeresen ellenőrizze a vízvezeték állapotát, hogy a cső nem sérült-e, nem tekeredett-e meg, és ha
szükséges, cserélje ki a vízvezetéket.
Kérjük, használat előtt rögzítse a lefolyócsövet, és győződjön meg arról, hogy a csatornát nem zárja el
idegen anyag.
Ha szükség van a víztömlő vagy a lefolyócső meghosszabbítására, akkor azt a helyi vevőszolgálati
központban vásárolhatja meg.
1. Húzza ki a mosószeres fiókot.
2. Adagoljon mosószert az előmosáshoz az I. rekeszbe.
3. Adagoljon mosószert a főmosáshoz a II. rekeszbe.
4. Adja hozzá az öblítőt a rekeszbe .
5. Kérjük, válassza ki a különböző mosási
hőmérséklethez megfelelő mosószertípust, hogy
a legjobb mosási hatást érje el kevesebb víz- és
energiafogyasztással.
Kérjük, ellenőrizze a ruházat címkéjén, hogy alkalmas-e gépi mosásra.
Kérjük, ellenőrizze a ruhák zsebeit, és vegye ki belőlük a tárgyakat, például érméket, hajtűket, kulcsokat stb.
A hosszú pántokat kösse össze, gombolja be, és húzza fel a cipzárat.
Ne tegyen több ruhát a mosógépbe, mint a névleges kapacitás.
Mosáskor, annak érdekében, hogy a gombok ne csapjanak zajt, fordítsa ki a gombokkal ellátott ruhákat,
mielőtt a mosógépbe teszi őket.
A mosószer betöltése
A mellékelt lefolyótömlő-tartókonzol segítségével a
csövet a fali kiállásba vagy a fürdőkádba is behelyezheti.
A KÉSZÜLÉK HASZNÁLATA

Related product manuals