EasyManua.ls Logo

TESY bilight series - Page 77

TESY bilight series
Print Icon
To Next Page IconTo Next Page
To Next Page IconTo Next Page
To Previous Page IconTo Previous Page
To Previous Page IconTo Previous Page
Loading...
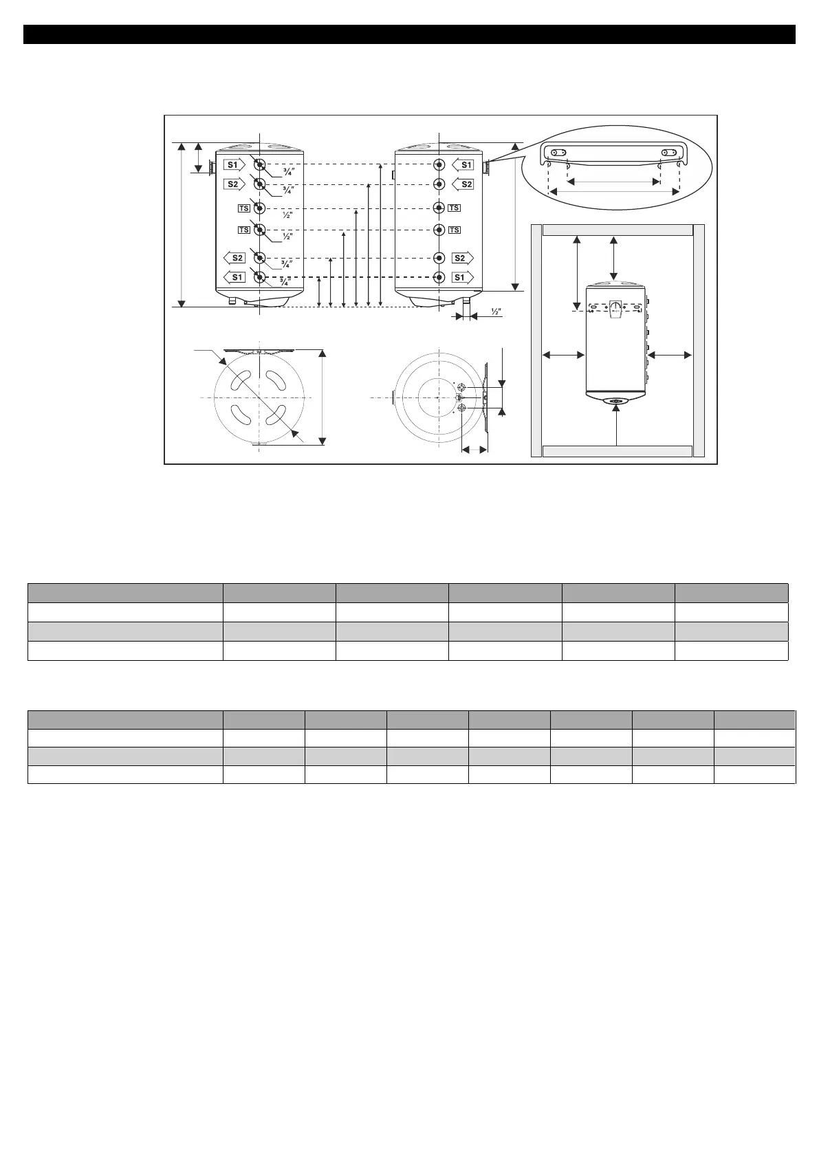
Type D, mm H, mm H1, mm B, mm E, mm
GCV7/4S 10044... / GCV7/4SL 10044... 440 990 892 467 182
GCV7/4S 12044... / GCV7/4SL 12044... 440 1155 1057 467 182
GCV7/4S 15044... / GCV7/4SL 15044... 440 1320 1222 467 182
Type S1, [m
2
] S2, [m
2
] V1, [L] V2, [L] P, [MPa] P, [MPa] Tmax , C]
GCV7/4S 10044... / GCV7/4SL 10044... 0.5 0.3 2.4 1.4 0.6 0.6 80
GCV7/4S 12044... / GCV7/4SL 12044... 0.5 0.3 2.4 1.4 0.6 0.6 80
GCV7/4S 15044... / GCV7/4SL 15044... 0.5 0.3 2.4 1.4 0.6 0.6 80
B
D
100
125
GCV7/4SL
GCV7/4S
E
H1
H
G
337
427
518
641
739
239
G
G
G
G
G
G
max 310 mm
min 220 mm
max
max
min
min
min 100 mm
min 700 mm
min 100 mm
min 700 mm
min 300 mm
GCV7/4S
1
1

Related product manuals