EasyManua.ls Logo

Toshiba RAS-18SKPX-V - Indoor (RAS-24 SKPX, RAS-24 SKP-E)

Toshiba RAS-18SKPX-V
73 pages
To Next Page IconTo Next Page
To Next Page IconTo Next Page
To Previous Page IconTo Previous Page
To Previous Page IconTo Previous Page
Loading...
13
FILE NO. SVM-08032
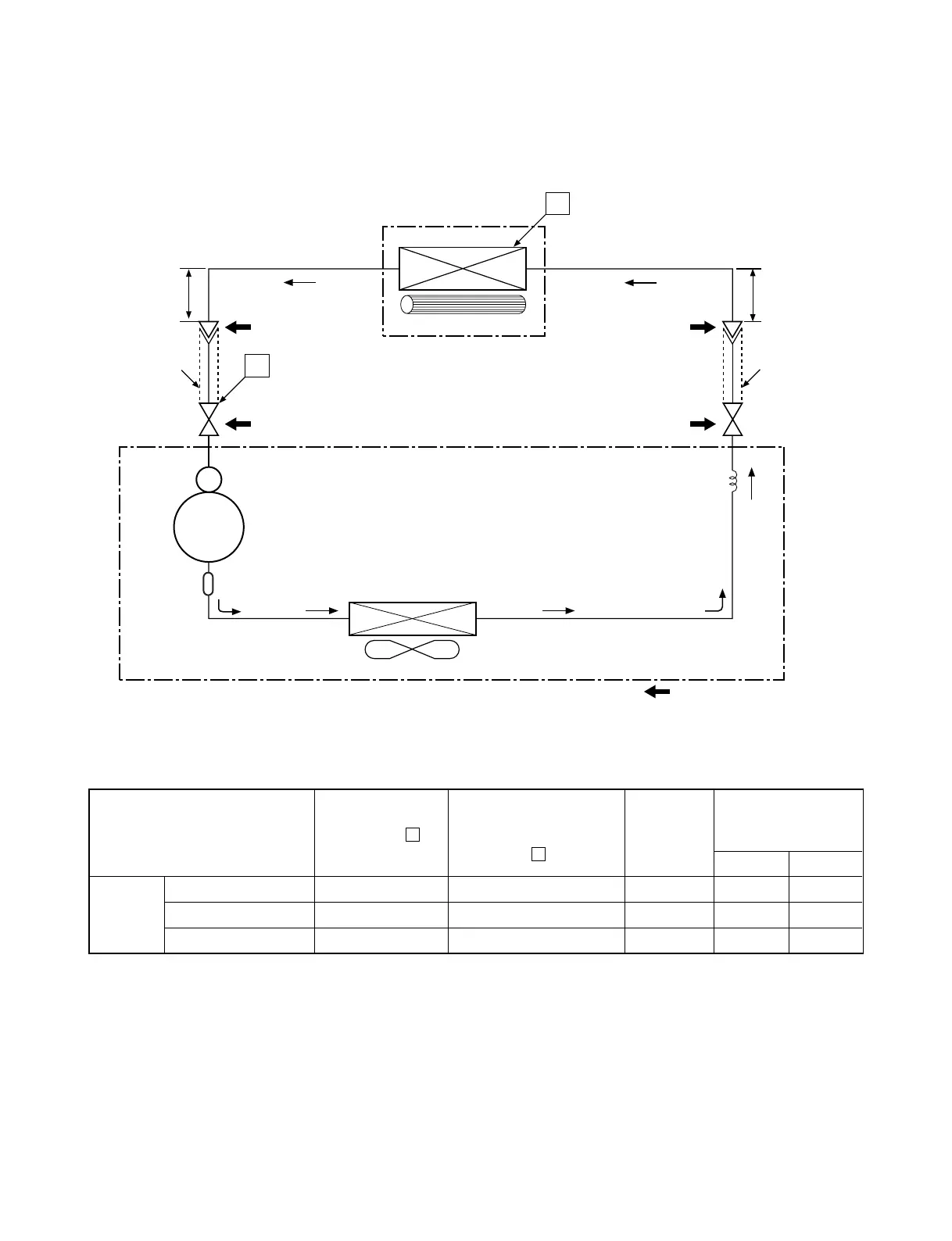
5-1. RAS-18SKPX / RAS-18S2AX, RAS-18SKPX-V / RAS-18S2AX-V
RAS-18SKP-E / RAS-18S2A-E
Note : Measure the heat exchanger temperature at the center of U-bend. (By means of TC sensor.)
Ambient temp.
conditions DB/WB
(°C)
Indoor Outdoor
Standard 0.46 12.5 High 27/19 35/24
Cooling High temperature 0.51 17.5 High 32/23 43/26
Low temperature 0.32 6.5 Low 21/15 21/15
Fan speed
(indoor)
50 Hz
Standard
pressure
P
(MPaG)
Cross flow fan
Compressor
Propeller fan
Outdoor unit
SHX33SC4-U
O.D.:12.7 mm O.D.:6.35 mm
Packed valve
(12.7)
Packed valve
(6.35)
T
P
Refrigerant
R22 1.23 kg
0.39 m
(Connecting pipe)
12.7
0.49 m
(Connecting pipe)
6.35
Mark ( ) means check points of Gas Leak
Capillary tube
2.0x1100 s
Surface temp. of heat
exchanger interchanging
pipe
T
(°C)
Heat exchanger
Heat exchanger
Discharge Muffler
25x160L
5. REFRIGERATION CYCLE DIAGRAM

Table of Contents

Related product manuals