EasyManua.ls Logo

Toshiba RAV-SM564MUT-E - Correct Usage; Preparation and Requirements

Toshiba RAV-SM564MUT-E
16 pages
Print Icon
To Next Page IconTo Next Page
To Next Page IconTo Next Page
To Previous Page IconTo Previous Page
To Previous Page IconTo Previous Page
Loading...
Compact 4-way Type
Owner’s Manual
EN
Compact 4-way Type
Owner’s Manual
– 6 –
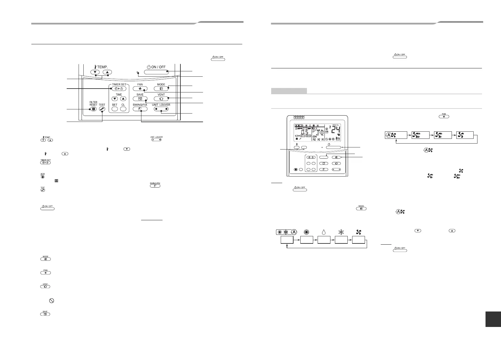
Operation section
Push each button to select a desired operation.
The control saves commands in memory and after the initial setting, there is no need for any additional
settings unless changes are desired. The air conditioner can be operated by pushing the
button.
1
button (Temperature set button)
Adjusts the set point.
Select the desired set point by pushing TEMP.
or TEMP. .
2 button (Timer set button)
Use to setup the timer.
3 button (Filter reset button)
Resets “ ” display after cleaning filter.
4 button (Test button)
Use only for service.
(During normal operation, do not use this button.)
5 button
When the button is pushed, the operation starts, and it
stops by pushing the button again.
When the operation has stopped, the operation lamp and
all the displays disappear.
6 Operation lamp
Green light illuminates when unit is on.
Although it flashes when operating the protection device
or an error occurs.
7
button (Operation mode button)
Selects desired operation mode.
8 button (Fan speed button)
Selects the desired Fan speed.
9 button (Ventilation button)
Use when a power ventilation kit (locally procured) is
connected.
If “ ” is displayed on the remote controller when
this button is pushed, no vent kit connected.
10
button (Power save operation)
Use to initiate power saving mode.
11
button (Unit / Louver select button)
Selects a unit number (left) and louver number (right).
UNIT:
Selects an indoor unit when adjusting wind direction
multiple indoor units are controlled with one remote
controller.
LOUVER:
Selects a louver when setting wind direction
adjustment independently.
12
button (Swing / Louver direction
button)
Selects automatic swing or setting the louver
direction.
OPTION :
Remote controller sensor
Usually the temperature sensor of the indoor unit senses the
temperature. The temperature on the surrounding of the
remote controller can also be sensed.
For details, contact the dealer from which you have
purchased the air conditioner.
8
6
4
3
2
5
7
10
12
1
9
11
4 Correct Usage
When the air conditioner is used for the first time or when the setting is changed, follow the steps below. Settings are saved in
memory and are displayed anytime the unit is turned on by pushing the button.
Preparation
When the circuit breaker is turned on, the partition lines are displayed on the remote controller.
* After the circuit breaker is turned on, the remote controller does not accept any commands for approx.
1 minute, this is not a failure.
REQUIREMENT
When the air conditioner is re-powered after it has not been used for a long period, turn on the circuit breaker
at least 12 hours before starting the air conditioner.
Start
1 Push button.
The operation lamp illuminates, and the operation
starts.
2 Select an operation mode with the
button.
One push of the button, and the display changes
in the order shown below.
3 Select fan speed with “ ” button.
One push of the button, and the display changes
in the order shown below.
When fan is in “ Auto”, fan speed is
adjusted based on difference between set point
and room temperature.
In heating operation, if the room temperature is
not heated sufficiently with speed Low”
operation, select “ Med.” or “ High”
operation.
The temperature sensor detects the return air
temperature at the indoor unit, which differs
from the room temperature depending on the
installation condition.
Set point is a target of room temperature.
( “Auto” is not selectable in the Fan
mode.)
4 Select the set point temperature by pushing
the “TEMP. ” or “TEMP. ” buttons.
Stop
Push button.
The operation lamp goes off, and the operation stops.
In the Cool, Dry, or Auto (cooling) mode, the fan runs
for 10 minutes (or more) for self clean operation.
SET
TIME
TIMER SET
TEST
FILTER
RESET
TEMP.
CL
FAN
SAVE
SWING/FIX
VENT
MODE
ON / OFF
UNIT LOUVER
1
3
2
4
Auto Heat Dry FanCool
11-EN 12-EN
+00EH99937799_01EN.book Page 6 Thursday, March 31, 2011 10:00 PM