EasyManua.ls Logo

Trac-Rite 944 - Initial Inspection and Preparation; Inspecting Door Shipment; Preparing the Installation Area; Checking Door Opening Requirements

Default Icon
12 pages
Print Icon
To Next Page IconTo Next Page
To Next Page IconTo Next Page
To Previous Page IconTo Previous Page
To Previous Page IconTo Previous Page
Loading...
800-448-8979
TRAC-RITE
Proprietary Notice
Information contained in this document is copyrighted
by Trac-Rite and may not be duplicated in full or part
by any person without prior written approval of Trac-
Rite. Its purpose is to provide the user with adequate
detailed documentation to efficiently install a model
944 rolling curtain door.
For Customer Support regarding:
Parts orders
Technical help
Emergency support
Installation questions
Damage
Shortages
Please Call: 1-800-448-8979
1. INSPECTION:
Door and Hardware: Upon receiving the door
shipment, immediately inspect the door and
hardware for damage. Verify the product received
with the packing list. Damage and/or shortages should
be reported immediately to Trac-Rite customer service
at 800-448-8979. Please have your bill of lading and
packing list to reference when reporting shortages
or damage. Do not install damaged material without
authorization from Trac-Rite.
2. PREPARATION:
Clean the work area. Remove all debris and sharp
objects from the area where the door will be
placed on the floor. Sweep the area clean. It is also
recommended that the door curtain assembly be
placed on a piece of cloth or cardboard to help
ensure that the finished door surfaces will not be
damaged while the door is being prepared for
installation.
Recommended tools for assembly:
Wrenches or sockets 7/16” and 1/2” sizes
• Drill or screw gun
• 3/8” and 7/16” hex drivers (wood mounting)
• 5/16” hex driver and 3/8” drill bit (steel
mounting)
• 5/16” and 7/16” hex drivers and 5/16”
masonry bit (concrete or masonry mounting)
• C-clamps or vise grips
• Safety glasses
• Work gloves
• Pliers
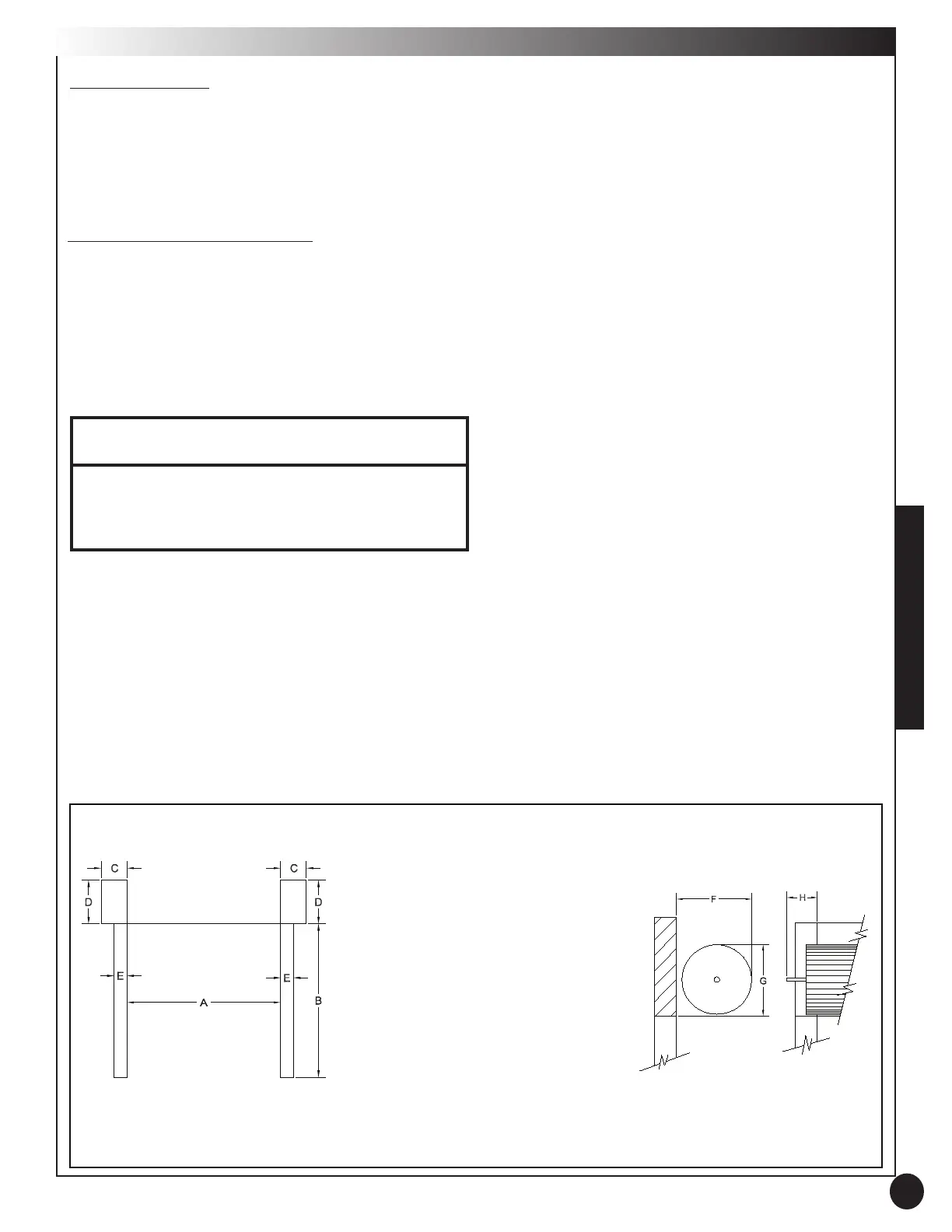
Door Opening Inspection (See Figure 1):
• Is the framed opening width and height the same
size as the door ordered? (A x B)
Are the door jambs plumb and square?
• Is the floor level and square with the door jambs?
• Is there adequate jamb side clearance? (E)
• Is there adequate clearance above the door
curtain roll? (G)
Is there adequate clearance in front of the roll? (F)
Are the jambs structurally and/or dimensionally
adequate to accept door brackets and guides?
2
SIDE VIEW
FRONT VIEW
Figure 1
A - FRAMED OPENING WIDTH
B - FRAMED OPENING HEIGHT
C - MINIMUM BRACKET MOUNTING WIDTH:
4”[10cm] FOR METAL OR WOOD;
6”[15.2cm] FOR MASONRY
D - MINIMUM HEADER HEIGHT:
7-1/2”[19cm]
E - MINIMUM JAMB WIDTH:
2”[5cm] FOR METAL OR WOOD;
4”[10cm] FOR MASONRY
F - BACK ROOM:
18”[46cm]*
G - HEAD ROOM:
15”[38cm]* DOORS UP TO 7’0”
16”[41cm]* DOORS 7’1” TO 10’4”
18” [46cm] DOORS 10’5” TO 12’
H - SIDE ROOM:
4”[10cm] FOR METAL OR WOOD;
(9”[23cm] ON A SIDE WITH A CHAIN
HOIST)
* ADD 1”[25mm] FOR INSULATED DOORS
DO NOT CUT BANDS which hold door in a roll until
instructed to do so. Trac-Rite will not guarantee
or accept responsibility if door is not installed as
instructed.
NOTE!
944_Manual_522000revH_818 color.indd 3 9/10/2018 1:36:45 PM