EasyManua.ls Logo

TRADEFORCE TRFSD240PE - Page 14

Default Icon
28 pages
Print Icon
To Next Page IconTo Next Page
To Next Page IconTo Next Page
To Previous Page IconTo Previous Page
To Previous Page IconTo Previous Page
Loading...
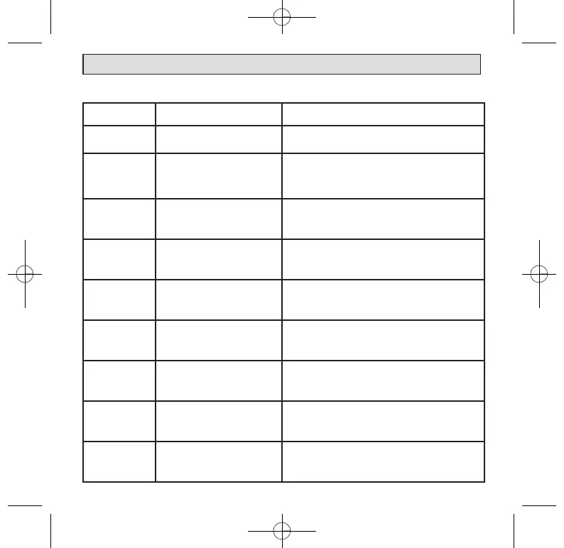
7. OPERATION, TESTING AND MAINTENANCE
7.3 Operating and Alarm Characteristics.
Function
LED Status Recommendation
Normal
Green ON Green LED indicate the AC mains power is present.
Normal
Red FLASHING every 40
seconds.
Red LED flashes every 30-40 seconds is normal.
The smoke alarm performs a self test every 30-40
seconds. The battery and electronics is tested for the
life of the unit.
Alarm mode
(For
TRFSD240PE)
Red light flashs. Smoke alarm
activated.
Indicate smoke alarm has activated and is in alarm mode.
The Red LED will be off after the alarm stops.
Alarm mode
(For
TRFSD240PERL)
Red light is SOLID. Smoke
alarm activated.
Indicate smoke alarm has activated and is in alarm mode.
The Red LED will latch solid for 5 minutes after the alarm
and then fade when alarm stops.
Alarm mode
Red Light is OFF. Smoke alarm
activated.
Smoke alarm in full alarm. Other interconnected units
may have activated the alarm. Check other smoke
alarms or devices.
Hush mode
Green light ON. Red light flash-
ing every 40 seconds.
HUSH button is pressed. Smoke alarm emits a chirp
every 40 seconds for approximately 5 minutes. Wait
5 minutes and the chirp will automatically stop.
Low Battery
Green ON, Flashing red light
every 40 seconds.
Smoke alarm chirp every 40 Seconds. May indicate low
battery status. Replace the battery.
Fault
(For
TRFSD240PE)
Red light flashs.
If the red light is constantly flashs for more than
15 minutes and there is no sign of alarms. Could mean a
potential fault with the unit. Replace the alarm.
Fault
(For
TRFSD240PERL)
Red light is SOLID
If the red light is constantly solid for more than
15 minutes and there is no sign of alarms. Could mean a
potential fault with the unit. Replace the alarm.
1398-7210-01_v1.qxd:_ 2013.5.15 5:25 PM Page 12