EasyManua.ls Logo

Trane 4TXCB003DS3HCA - Outline Drawings

Trane 4TXCB003DS3HCA
12 pages
Print Icon
To Next Page IconTo Next Page
To Next Page IconTo Next Page
To Previous Page IconTo Previous Page
To Previous Page IconTo Previous Page
Loading...
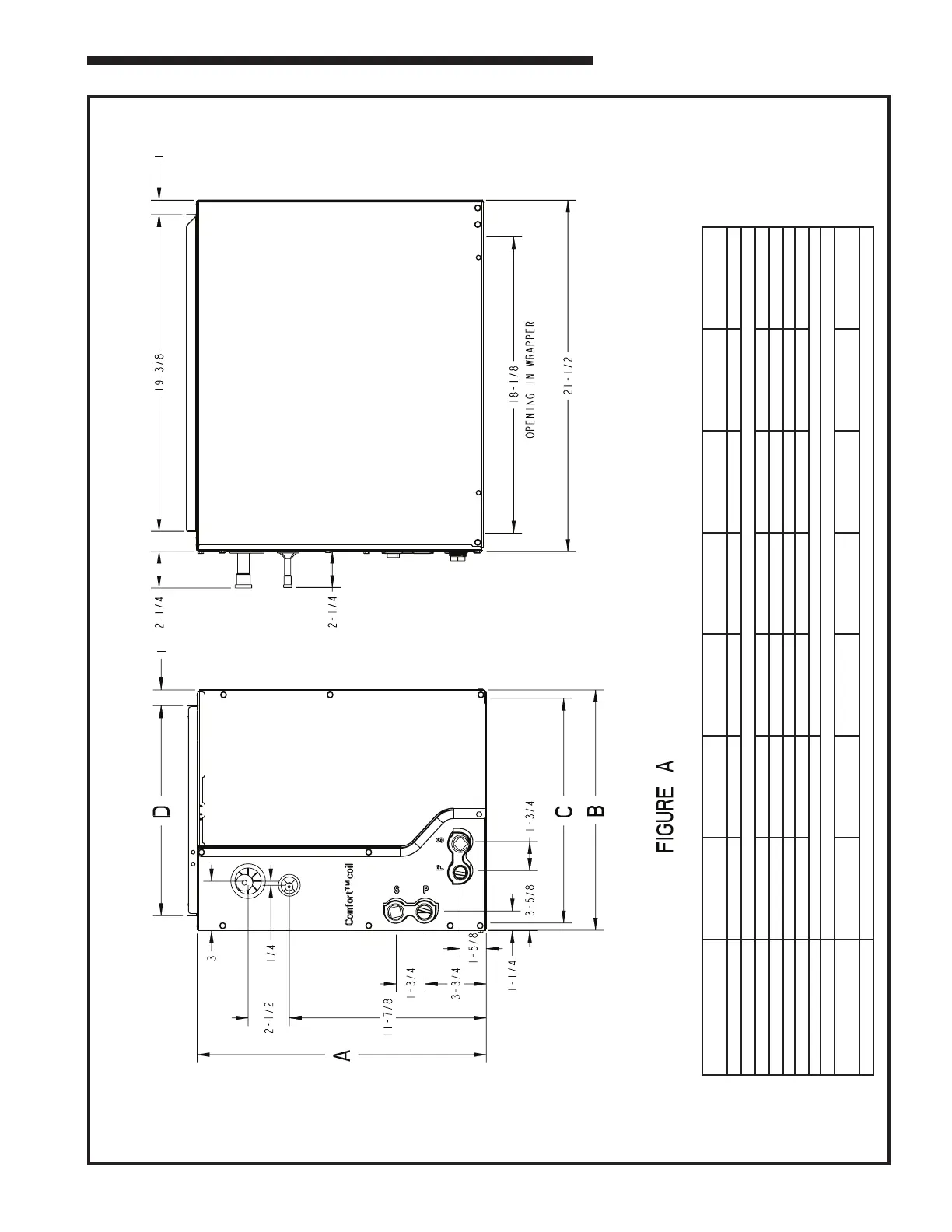
18-AD35D1-2D-EN 7
Installer’s Guide
MODEL 4TXCA002DS3 4TXCA032DS3 4TXCB004DS3 4TXCC005DS3 4TXCB006DS3 4TXCC007DS3 4TXCC009DS3
WEIGHT (LBS.) 42 46 58 60 65 69 78
REFRIGERANT CONTROL TXV (NON-BLEED)
HEIGHT "A" (IN.) 17-1/2 22-1/2 22-1/2 22-1/2 26-7/8 26-7/8 30-3/4
OVERALL WIDTH "B" (IN.) 14-1/2 14-1/2 17-1/2 21 17-1/2 21 21
OPENING WIDTH "C" (IN.) 13-5/8 13-5/8 16-5/8 20-1/8 16-5/8 20-1/8 20-1/8
TOP OPENING "D" 12-3/4 12-3/4 15-3/4 19-1/4 15-3/4 19-1/4 19-1/4
GAS CONNECTION 3/4 7/8
LIQUID CONNECTION 3/8
MATCHED FURNACE WIDTH
(NO ADAPTER REQUIRED)
14-1/2 14-1/2 17-1/2 21 17-1/2 21 21
DRAIN PAN PLASTIC
Outline Drawing for models: 4TXCA002DS3, 4TXCA032DS3, 4TXCB004DS3, 4TXCC005DS3, 4TXCB006DS3, 4TXCC007DS3, 4TXCC009DS3
From Dwg.
D345686 RevD

Related product manuals