EasyManua.ls Logo

Trane 4TXK6548G1000AA - 4.10 4 TXK6536 G1000 AA Wiring Diagram

Trane 4TXK6548G1000AA
187 pages
Print Icon
To Next Page IconTo Next Page
To Next Page IconTo Next Page
To Previous Page IconTo Previous Page
To Previous Page IconTo Previous Page
Loading...
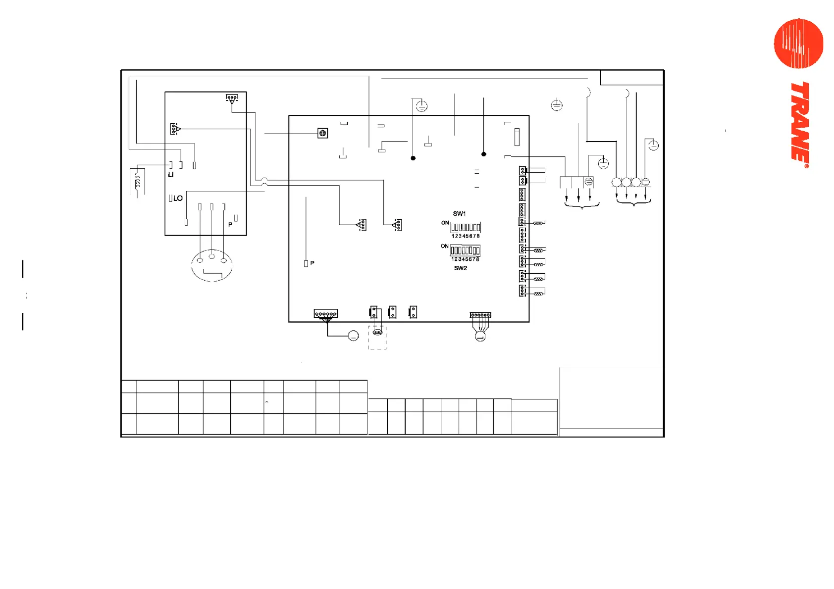
40
ON
OFF
Reactor
Manually
forced
operation valid
Manually
forced operation
invalid
SW1-1
W
W
C N 1 0
R B L
AC-L
N
Manually
forced
cooling
Manually
forced
heating
SW1-2
W V U
W V U
AC-N
MODULE
CN 11
B
normal
stand by
cost
low stand
by power
cost
SW1-3
w
R
COMPRESSOR
SW1-4
RESERVED
RESERVED
central
control
SW1-5
BM
S
B
W
RESERVED
RESERVED
SW1-6
C N3 6
C N1 9
Defrost
automatic
Defrost
by time
SW1-7
CN12
L-OUT
N-OUT
DC
-
FAN
RESERVED
SW2-1
RESERVED
SW1-8
B
C N3 4
INV-POWER
CN37
M
C N 2 4
ELECTRONIC
CN16 CN17 CN25
4WV
CONTROL UNIT
OFF OFF
C N 42
N-OUT1
C N 4 3
L-OUT1
SW2-2 SW2-3
CN10
OFF OFF
CN 35
P E
SW2-4 SW2-5
Y/G
Y/G
R
C H1
ON
250VAC T3.15A
FUSE2
SW2-6SW2-7
OFF OFF
CN39
EEVA
CN8
M
PE AC-
L
T30A/250VAC
FUSE1
SW2-8
ON
AC-N
CN5
TS
CN6
CN4
TE(1)
CN23
CN3
Td
CN7 TAO
C N 2
C N 1
CN28
CN29
CN13
CN15
4TXK6536G
-1000AA
MODEL
Tcm
OR: Orange B: Black BL: Blue BR:Brown
Y/G: Yellow/Green R: Red W: White
Tc: Condensing Temp. Sensor
Ts: Compressor Suction Temp.
Sensor Ta: Ambient Temp. Sensor
Td: Compressor Discharge Temp.
Sensor Te: Defrosting Temp. Sensor
Tcm:Condensing Temp. Sensor
for Indoor Units a/b/c/d/e (Gas Pipe)
L N
R B L
POWER
0150538192
Y/G
0150538192
To Indoor
1 2 3
B L R R
Y / G
4.10 4TXK6536G1000AA

Related product manuals