EasyManua.ls Logo

Trane A4AC3048B1000A - Section 16. Refrigerant Circuits

Trane A4AC3048B1000A
32 pages
Print Icon
To Next Page IconTo Next Page
To Next Page IconTo Next Page
To Previous Page IconTo Previous Page
To Previous Page IconTo Previous Page
Loading...
28 88-A4AC3001-1D-EN
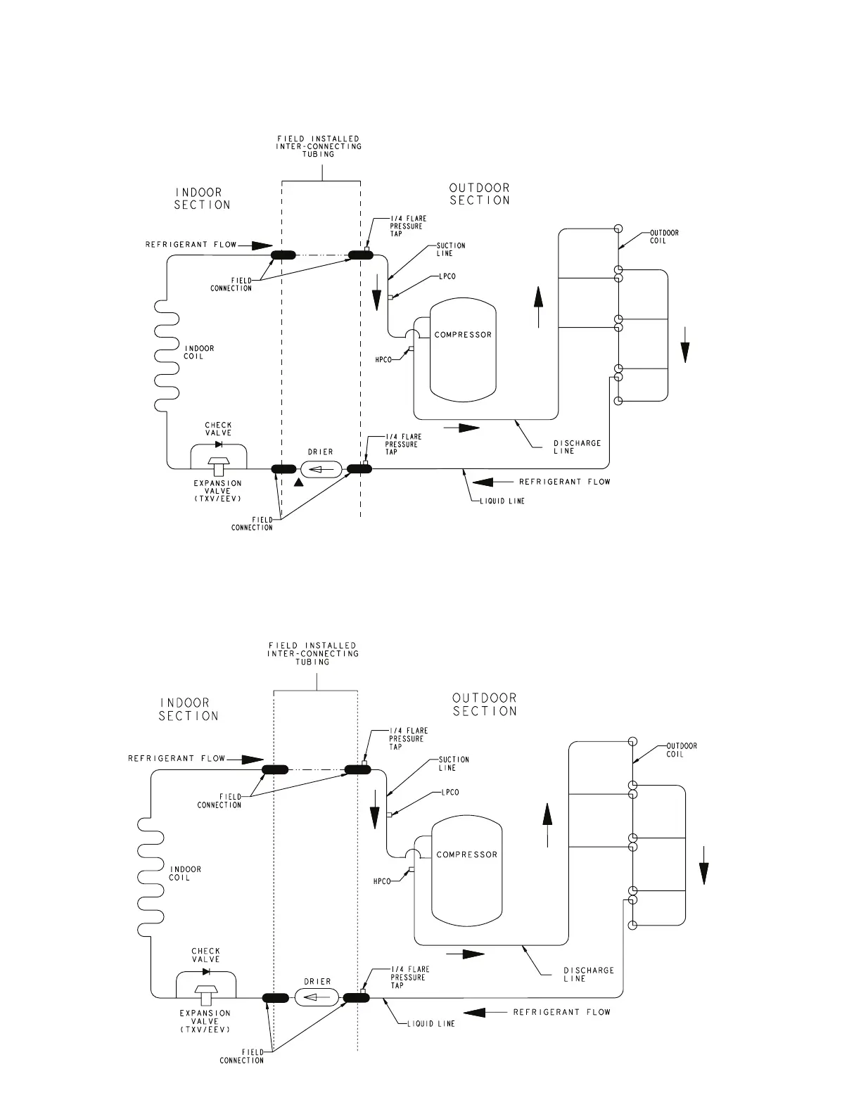
Section 16. Refrigerant Circuits
2.5 & 3.5 Ton Units
1.5 & 2 Ton Units
PRINTED FROM D157394P01
PRINTED FROM D157394P02 REV A

Related product manuals