EasyManua.ls Logo

Trane A801X080BM4SAC - Page 14

Trane A801X080BM4SAC
60 pages
Print Icon
To Next Page IconTo Next Page
To Next Page IconTo Next Page
To Previous Page IconTo Previous Page
To Previous Page IconTo Previous Page
Loading...
14
88-A801X001-1C-EN
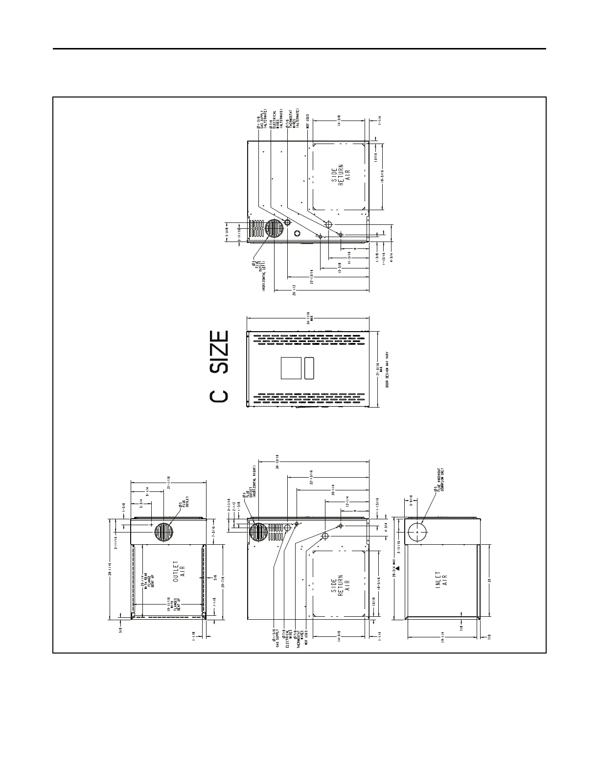
Table 4. 21” Width Cabinet
OOuuttlliinnee DDrraawwiinnggss

Other manuals for Trane A801X080BM4SAC

Related product manuals