EasyManua.ls Logo

Trane A952V040BU3SB - Outline Drawing

Trane A952V040BU3SB
128 pages
Print Icon
To Next Page IconTo Next Page
To Next Page IconTo Next Page
To Previous Page IconTo Previous Page
To Previous Page IconTo Previous Page
Loading...
A952V-SVX001-1B-EN
15
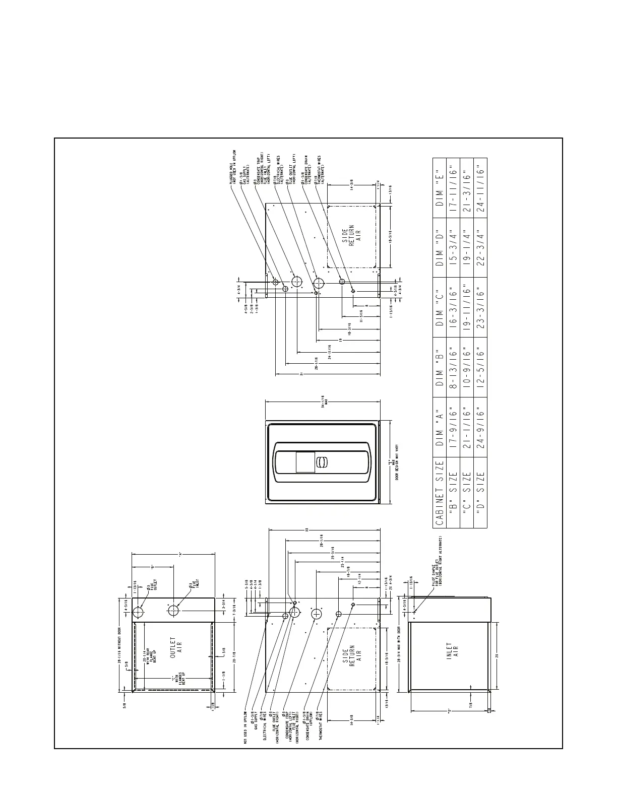
Outline Drawing
Table 2. 17.5”, 21” and 24.5” Upflow Cabinets

Table of Contents

Related product manuals