EasyManua.ls Logo

Trane AAM7A0C36H31SA - Control Layout; Refrigerant Switch SW1

Trane AAM7A0C36H31SA
28 pages
Print Icon
To Next Page IconTo Next Page
To Next Page IconTo Next Page
To Previous Page IconTo Previous Page
To Previous Page IconTo Previous Page
Loading...
TAM77
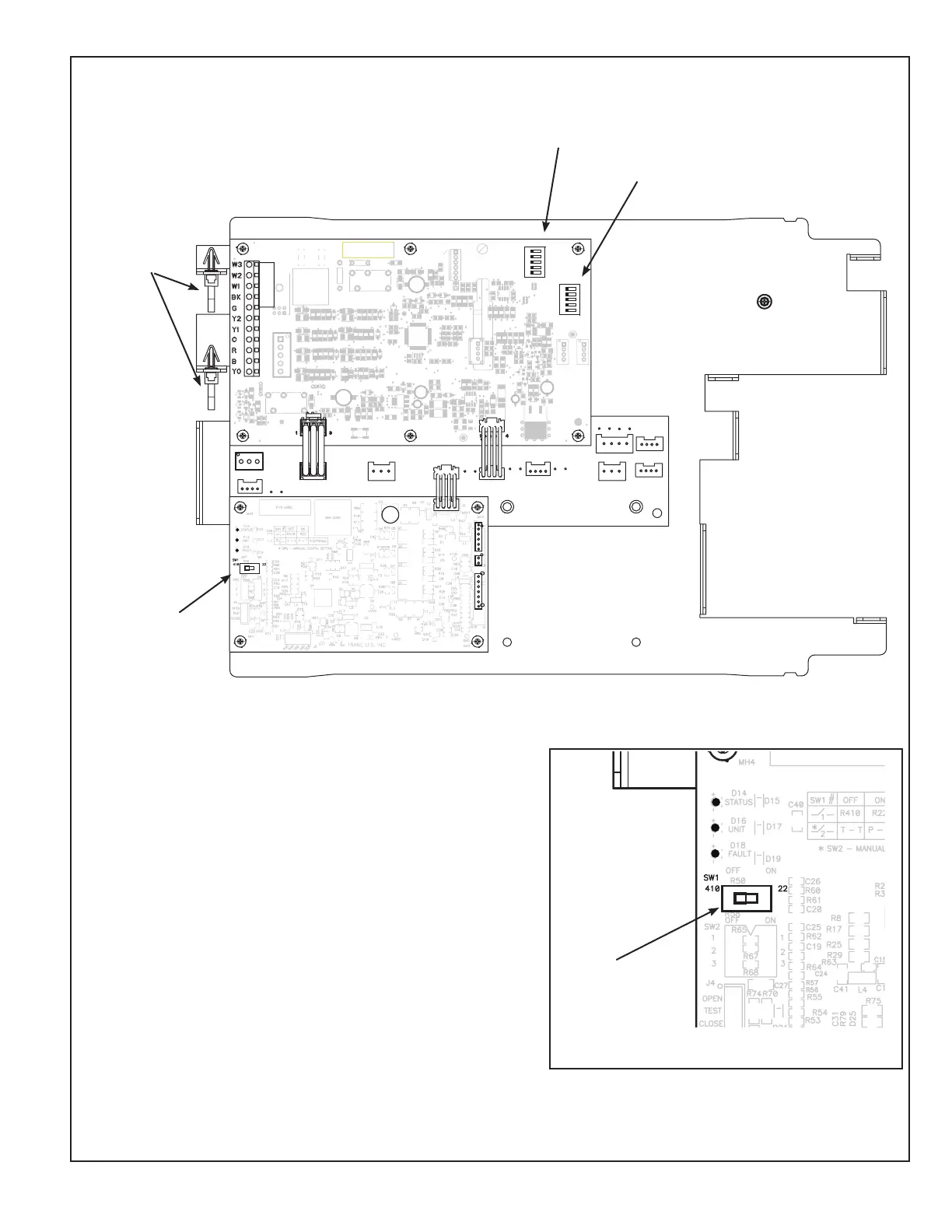
Refrigerant Switch SW1
Set the system refrigerant to either R-410A or R-22
using the Refrigerant Switch located on the Expan-
sion Valve Control board (EVC) in the Control Pocket.
Factory default is R-410A.
Note: The power must be shut off and then re-applied
in order for the EVC to recognize the change.
Wire Ties
Pb
FAULT
UNIT
48
33
32
17
16
1
64
49
BK Jump er
TEST
TRANEU.S.INC.
V
DD
PG
D
M
C
L
R
V
SS
PGC
3.
3
V
SCL
SDA
GND
HUM
5V
MOTOR
GND
RX
TX
+12V
PART NO.LABEL
BARCODE
12345
12345
STATUS
Yo Jumper
+12V
+13.8V
C60
C59
R57
R58
R64R65
R76
R78
C20
C28
C55
S3
R110
R59
R41
R68
C40
R108
R93
R109
R12
R55
R23
R20
R49
R13
R14
D23
D19
D18
C46
C39
C6
C23
R80
J13
R71
R67
R52
R75
R72
Q2
C41
R61
Q6
Q7
R1
R33
R34
J4
Q1
X1
U5
U4
U3
TZ2
T2
T1
R99
R98
R97
R60
R96
R95
R21
R91
R8
7
R88
R70
R86
R83
R81
R66
R79
R77
R54
R103
R106
R4
R104
R51
R53
R48
R47
R44
R42
R39
R82
R37
R35
R31
R30
R74
R89
R25
R18
R19
R10
R9
R8
R3
R2
R5
R7
Q8
Q4
PTC1
MOV1
L2
L3
K1
J3
J6
J9
D36
D35
D34
D1
D22
D29
D25
D24
D7
D4
D2
D28
C57
C54
C56
C51
C49
C48
C47
C52
C43
C42
C36
C35
C3
4
C31
C30
C29
C13
C7
C3
C2
C1
U1
C58
R105
C50
U2
J7
R24
R17
D6
D3
D14
D17
RNET 1
RNET 2
R73
1
J8
Yo
R
B
O
Y1
J1
W2
W1
R63
R62
R56
D21
D20
C32
C33
R38
R36
R16
R15
R32
R11
R28
R27
R26
D13
D12
D5
D11
D10
C24
C25
C4
C5
C16
C17
D8
R50
R45
R85
R84
D16
D15
D31
D30
C26
C27
C44
C45
D32
D33
R94
R100
R101
R
1
0
7
R29
K2
R
6
C53
C22
C19
C
1
5
C
12
C9
C8
C11
C14
C18
C2
1
D26
R69
C37
C38
C10
D9
L1
R102
D27
R40
R22
R46
R43
Q3
Q5
1
1
HP
2(Compressor)
2(Stages)
AC (S ystem)
}
Capacity (Tons)
OUTDOOR
}
Torque
CFM/Ton
Cool OffDelay
}
INDOOR
CFM
S1
on
on
S2
S2 Dip Switch
S1 Dip Switch
SW1 Dip
Switch
SW1 Dip
Switch
Pb
FAULT
UNIT
48
33
32
17
16
1
64
49
BK Jumper
TEST
TRANEU.S.INC.
V
DD
PG
D
M
C
L
R
V
SS
PGC
3.
3
V
SCL
SDA
GND
HUM
5V
MOTOR
GND
RX
TX
+12V
PART NO.LABEL
BARCODE
12345
12345
STATUS
Yo Jumper
+12V
+13.8V
C60
C59
R57 R58
R64R65
R76R78
C20
C28
C55
S3
R110
R59
R41
R68
C40
R108
R93
R109
R12
R55
R23
R20
R49
R13
R14
D23
D19
D18
C46
C39
C6
C23
R80
J13
R71
R67
R52
R75
R72
Q2
C41
R61
Q6
Q7
R1
R33
R34
J4
Q1
X1
U5
U4
U3
TZ2
T2
T1
R99
R98
R97
R60
R96
R95
R21
R91
R8
7
R88
R70
R86
R83
R81
R66
R79
R77
R54
R103
R106
R4
R104
R51
R53
R48
R47
R44
R42
R39
R82
R37
R35
R31
R30
R74
R89
R25 R18
R19
R10
R9
R8
R3
R2
R5
R7
Q8
Q4
PTC1
MOV1
L2
L3
K1
J3
J6
J9
D36
D35
D34
D1
D22
D29
D25
D24
D7
D4
D2
D28
C57
C54
C56
C51
C49
C48
C47
C52
C43
C42
C36
C35
C3
4
C31
C30
C29
C13
C7
C3
C2
C1
U1
C58
R105
C50
U2
J7
R24
R17
D6
D3
D14
D17
RNET 1
RNET 2
R73
1
J8
Yo
R
B
O
Y1
J1
W2
W1
R63
R62
R56
D21
D20
C32
C33
R38
R36
R16
R15
R32
R11
R28
R27
R26
D13
D12
D5
D11
D10
C24
C25
C4C5C16C17
D8
R50
R45
R85
R84
D16
D15
D31
D30
C26
C27
C44
C45
D32
D33
R94
R100
R101
R
1
0
7
R29
K2
R
6
C53
C22
C19
C
1
5
C
12
C9
C8
C11
C14
C18
C2
1
D26
R69
C37
C38
C10
D9
L1
R102
D27
R40
R22
R46
R43
Q3
Q5
1
1
HP
2(Compressor)
2(Stages)
AC (System)
}
Capacity (Tons)
OUTDOOR
}
Torque
CFM/Ton
Cool OffDelay
}
INDOOR
CFM
S1
on
on
S2
Airflow Control (AFC)
Distribution Board
Electronic Expansion Valve Control (EVC)
Electronic Expansion Valve Control (EVC)
Control Layout

Related product manuals