EasyManua.ls Logo

Trane CVGF-SVU02B-E4 - Page 21

Trane CVGF-SVU02B-E4
88 pages
Print Icon
To Next Page IconTo Next Page
To Next Page IconTo Next Page
To Previous Page IconTo Previous Page
To Previous Page IconTo Previous Page
Loading...
CVGF-SVU02B-E4
21
General
Information
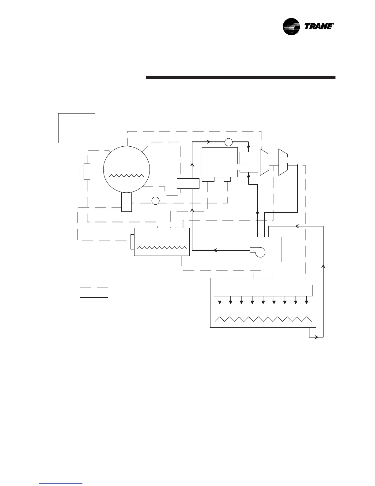
Figure 11. Oil circuit diagram
Starter
Condenser
Economizer
Condenser
Sump
High Lift
Unloading
Valve (HLUV)
Refrigerant
Oil
Motor
Oil Cooler
Strainer
S
F
Distributor
Evaporator
Fixed Orifice
Oil Sump
Pump
Internal Filter
Bearings
Gears
ST 1
ST 2
Compressor
Fixed Orifice

Related product manuals