EasyManua.ls Logo

Trane IntelliPak SFHL Series - Page 87

Trane IntelliPak SFHL Series
201 pages
Print Icon
To Next Page IconTo Next Page
To Next Page IconTo Next Page
To Previous Page IconTo Previous Page
To Previous Page IconTo Previous Page
Loading...
RT-SVX36G-EN 87
Installation
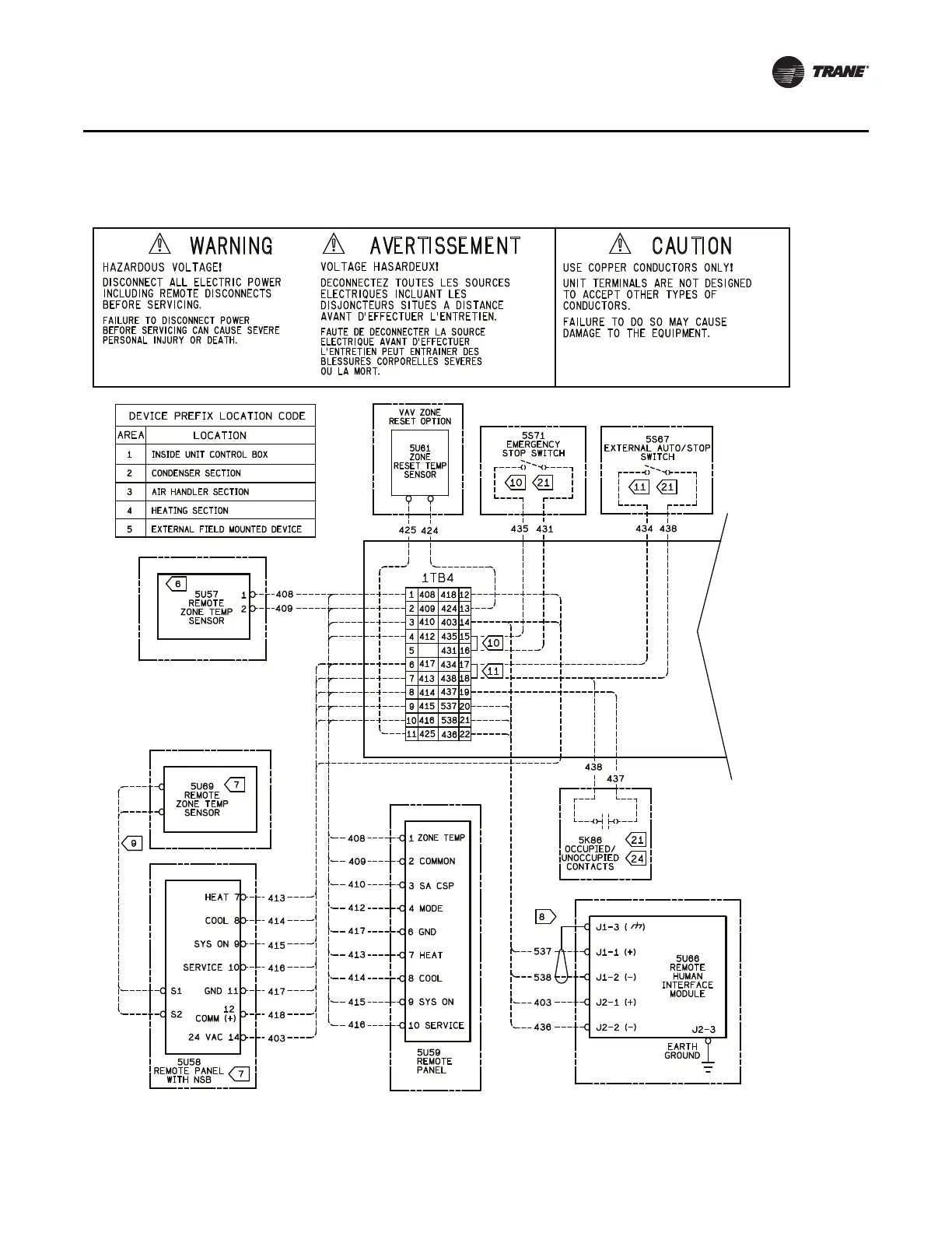
Figure 39. Typical field wiring diagram for 20-89 ton VAV control option

Table of Contents

Related product manuals