EasyManua.ls Logo

Trane NTXMPH20A122AA - Page 17

Trane NTXMPH20A122AA
106 pages
Print Icon
To Next Page IconTo Next Page
To Next Page IconTo Next Page
To Previous Page IconTo Previous Page
To Previous Page IconTo Previous Page
Loading...
17
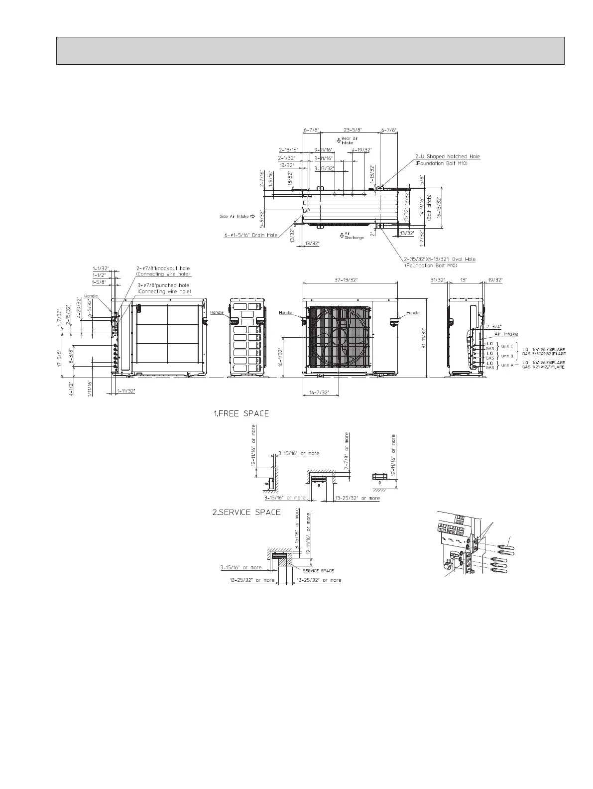
NTXMMX24A132AA
NTXMMX30A132AA
Unit: inch (mm)
Lock nut
Conduit plates
Conduit connector
OBHT702

Related product manuals