EasyManua.ls Logo

Trane Precedent THJ120 - Page 56

Trane Precedent THJ120
60 pages
Print Icon
To Next Page IconTo Next Page
To Next Page IconTo Next Page
To Previous Page IconTo Previous Page
To Previous Page IconTo Previous Page
Loading...
56
RT-SVX074A-EN
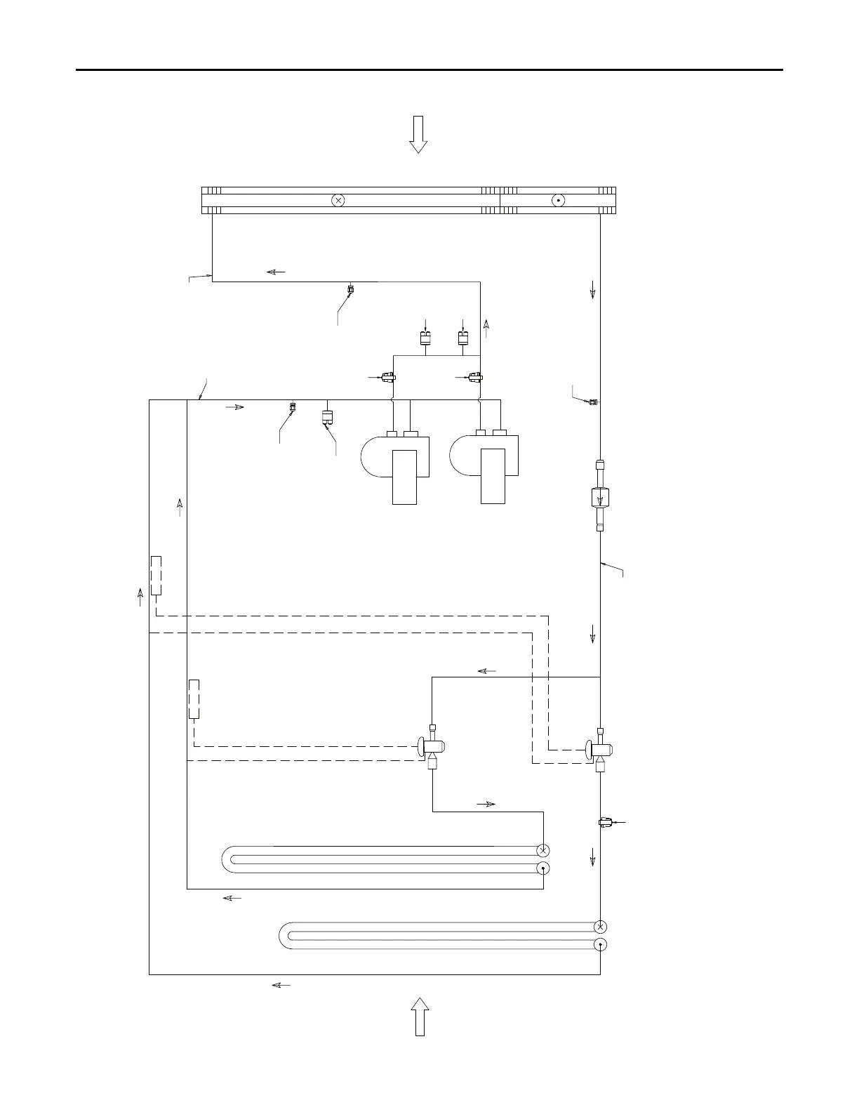
Figure 54. Piping diagram – 15 to 25 tons high efficiency (THJ180–300)
COMPRESSOR
1A
S
D
COMPRESSOR
1B
S
D
SERVICE
VALVE
SU
C
T
ION
LINE
LIQUID LINE
FITER DRIER
TXV #1
EQUALIZING LINE
SERVICE
VALVE
OUTDOOR COIL
LOW
PRESSURE
CONTROL
DISCHARGE
LINE
DISCHARGE
LINE
THERMOSTAT
HIGH
PRESSURE
CONTROL
AIR
AIR
INDOOR COIL #1
INDOOR COIL #2
TXV BULB #2
TXV BULB #1
TXV #2
EQUALIZING LINE
DISCHARGE
LINE
THERMOSTAT
HIGH
PRESSURE
CONTROL
SERVICE
VALVE
FROSTAT
Piping Diagrams

Related product manuals