EasyManua.ls Logo

Trane Precedent TSJ300A - Page 56

Trane Precedent TSJ300A
60 pages
Print Icon
To Next Page IconTo Next Page
To Next Page IconTo Next Page
To Previous Page IconTo Previous Page
To Previous Page IconTo Previous Page
Loading...
56
RT-SVX070B-EN
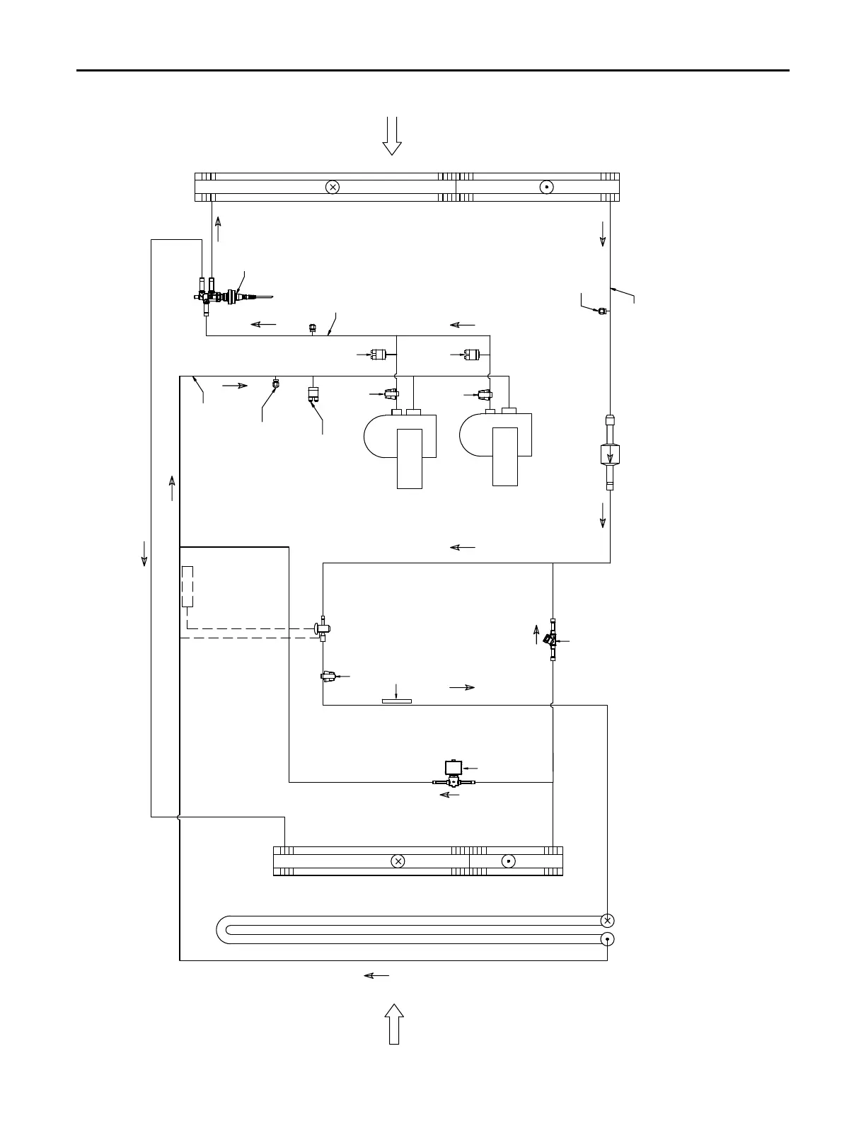
Figure 55. Piping diagram 6 to 12.5 tons standard efficiency hot gas reheat (TSJ072–150)
SOLENOID
VALVE
BLEED TUBE
MTW-7S VALVE
A
B
INDOOR COIL
AIR
SERVICE
VALVE
NOITCUS
LINE
LIQUID LINE
FILTER DRIER
TXV
TXV BULB
EQUALIZING LINE
SERVICE
VALVE
AIR
OUTDOOR COIL
LOW
PRESSURE
CONTROL
COMPRESSOR
1A
S
D
COMPRESSOR
1B
DISCHARGE
LINE
THERMOSTAT
FROSTAT
HIGH
PRESSURE
CONTROL
D
DISCHARGE
LINE
THERMOSTAT
HIGH
PRESSURE
CONTROL
S
REHEAT
COIL
DISCHARGE LINE
THERMISTOR
CHECK
VALVE
Piping Diagrams

Related product manuals