EasyManua.ls Logo

Trane Precedent YZC120F - Page 38

Trane Precedent YZC120F
60 pages
Print Icon
To Next Page IconTo Next Page
To Next Page IconTo Next Page
To Previous Page IconTo Previous Page
To Previous Page IconTo Previous Page
Loading...
Installation
38 RT-SVX46G-EN
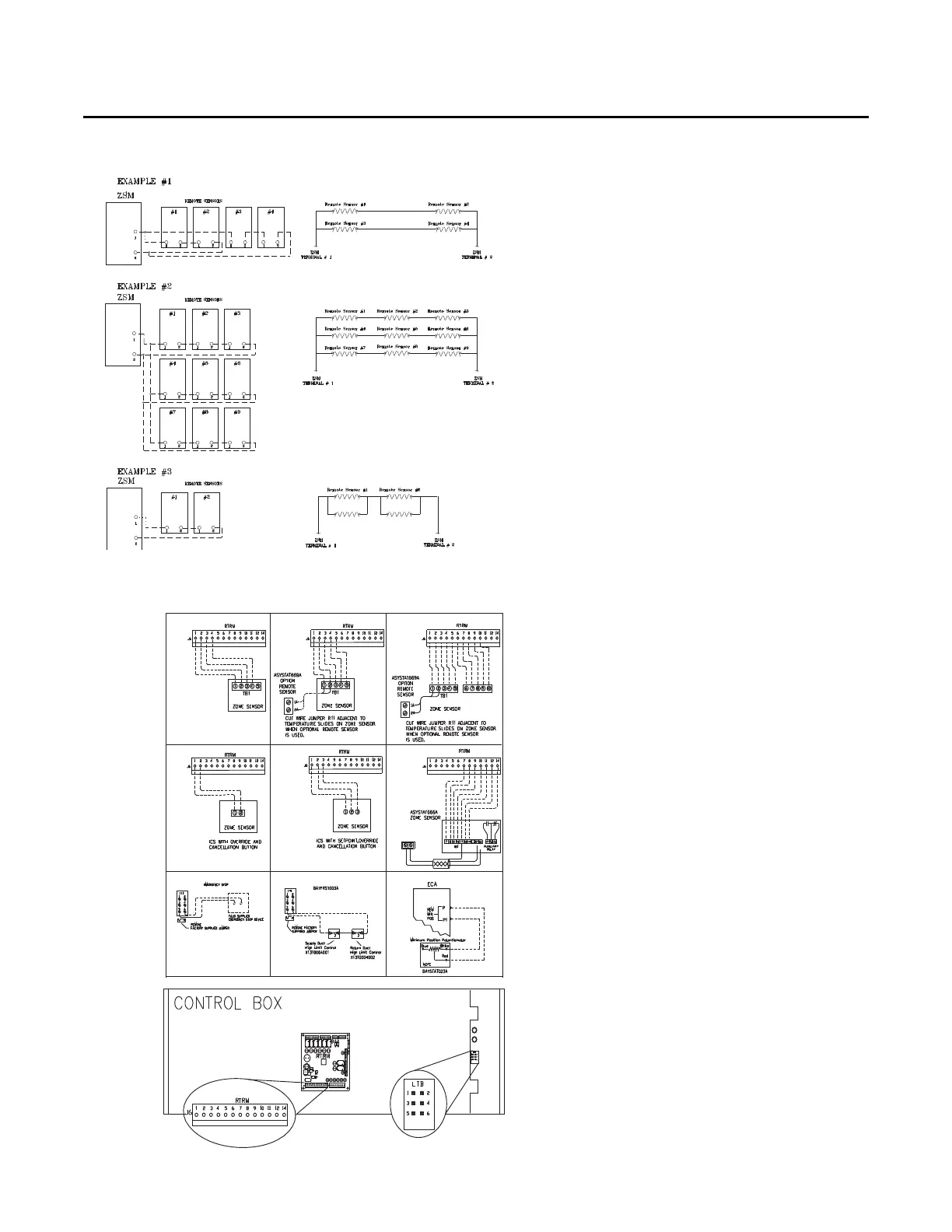
Figure 66. Examples
Figure 67. Typical field wiring diagrams for optional controls (ReliaTel™ only)
BAYSENS075*
BAYSENS075*
BAYSENS119*
BAYSENS110*
BAYSENS108*
BAYSENS106*
BAYSENS073* BAYSENS074*
BAYSENS075*
ASYSTAT669A
OPTIONAL REMOTE SENSOR

Table of Contents

Related product manuals