EasyManua.ls Logo

Trane TDHMD120BCV5VB - Electrical Data; TUHM Wiring Diagram

Trane TDHMD120BCV5VB
32 pages
Print Icon
To Next Page IconTo Next Page
To Next Page IconTo Next Page
To Previous Page IconTo Previous Page
To Previous Page IconTo Previous Page
Loading...
21
Pub. No. 22-1840-14
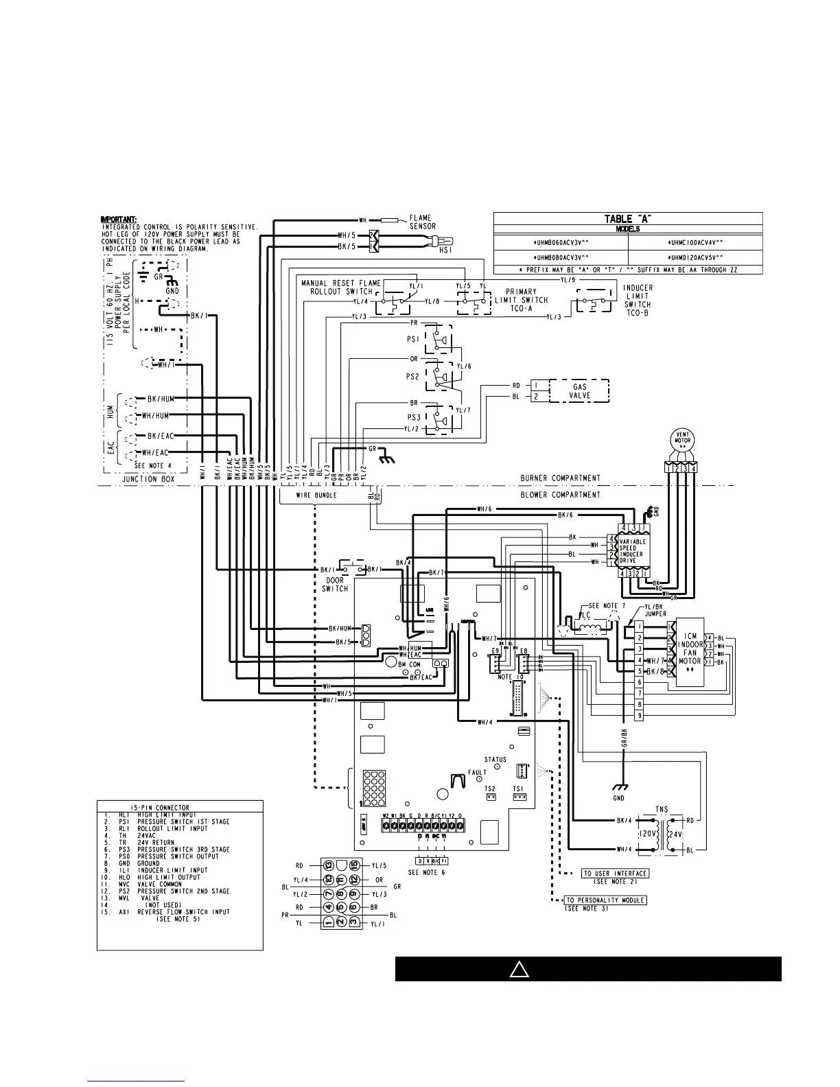
Electrical Data
TUHM Wiring Diagram
CAUTION
!
Label all wires prior to disconnection when servicing con-
trols. Wiring errors can cause improper and dangerous opera-
tion. Verify proper operation after servicing.

Related product manuals