EasyManua.ls Logo

Trane TDHMD120BCV5VB - TDHM-ACV Outline Drawing

Trane TDHMD120BCV5VB
32 pages
Print Icon
To Next Page IconTo Next Page
To Next Page IconTo Next Page
To Previous Page IconTo Previous Page
To Previous Page IconTo Previous Page
Loading...
30
Pub. No. 22-1840-14
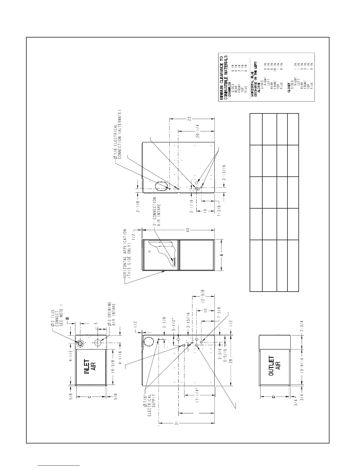
TDHM-ACV DOWNFLOW/ HORIZONTAL OUTLINE DRAWING
(ALL DIMENSIONS ARE IN INCHES)
Ø 1-5/8” HOLE WITH PLUG
CONDENSATE DRAIN
Ø 1-5/8” HOLE WITH PLUG
GAS CONNECTION
(ALTERNATE)
1-5/8” HOLE WITH PLUG
20-1/4”
1-3/4 X 2-13/32 CUTOUT
HORIZONTAL DRAIN
Ø 1-5/8” HOLE WITH PLUG
1-1/2 x 2-1/2 OVAL
GAS CONNECTION
MODEL
(SEE NOTE 1)
DIM "A" DIM "B" DIM "C" DIM "D"
*DHMB060ACV3VB
*DHMB060BCV3VB
*DHMB080ACV3VB
17-1/2" 2-1/4" 16-1/4" 16"
*DHMC100ACV4VB 21" 2-1/2" 19-3/4" 19-1/2"
*DHMD120ACV5VB
*DHMD120BCV5VB
24-1/2" 2-15/16" 23-1/4" 23"

Related product manuals