EasyManua.ls Logo

Trane TUD2B060AFV32A - Page 20

Trane TUD2B060AFV32A
22 pages
Print Icon
To Next Page IconTo Next Page
To Next Page IconTo Next Page
To Previous Page IconTo Previous Page
To Previous Page IconTo Previous Page
Loading...
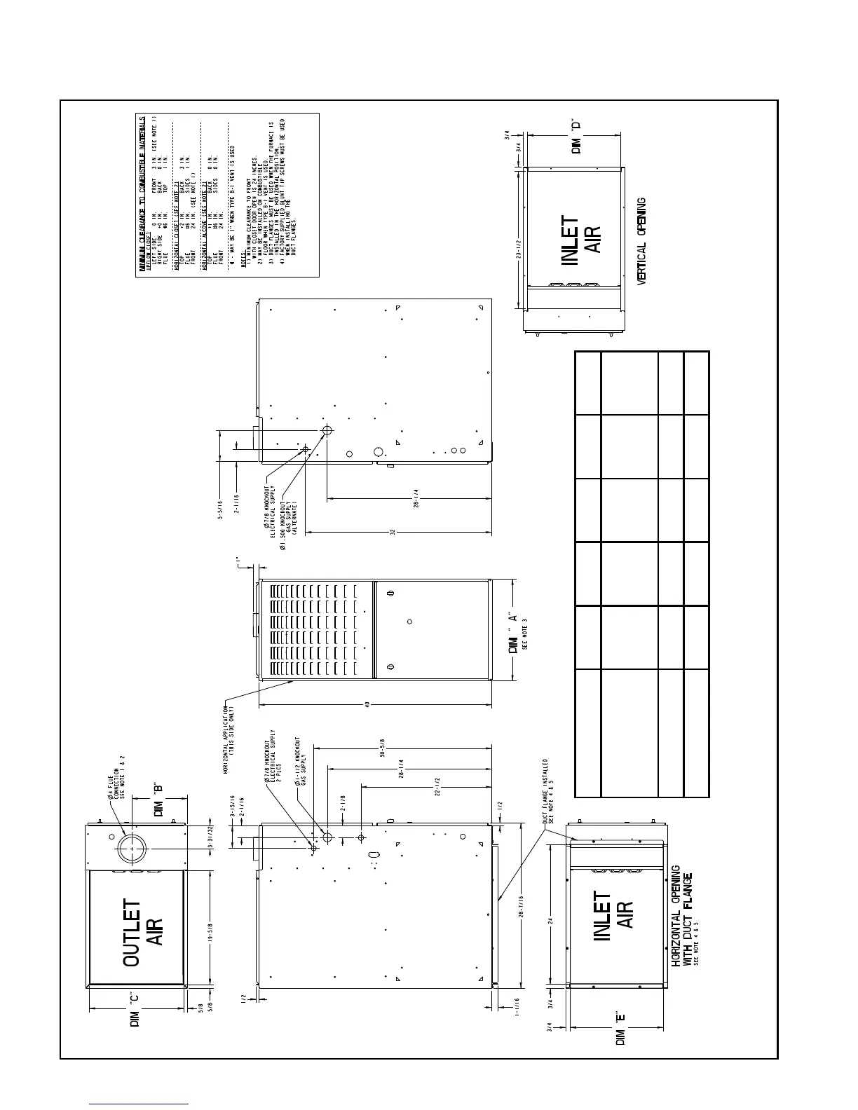
Dimensions
*UD2 OUTLINE DRAWING
(ALL DIMENSIONS ARE IN INCHES)
MODEL DIM "A" DIM "B" DIM "C" DIM "D" DIM "E"
*UD2B060AFV32A
*UD2B080AFV32A
*UD2B100AFV32A
17-1/2" 9-5/8" 16-1/4" 16" 16"
*UD2C080AFV42A 21" 13-1/16" 19-3/4" 19-1/2" 19-1/2"
*UD2D120AFV52A 24-1/2" 15-5/16" 23-1/4" 23" 23"
* PREFIX LETTER MAY BE "A" OR "T"
Bottom Return ONLY