EasyManua.ls Logo

Trane YHC072F - Page 20

Trane YHC072F
72 pages
To Next Page IconTo Next Page
To Next Page IconTo Next Page
To Previous Page IconTo Previous Page
To Previous Page IconTo Previous Page
Loading...
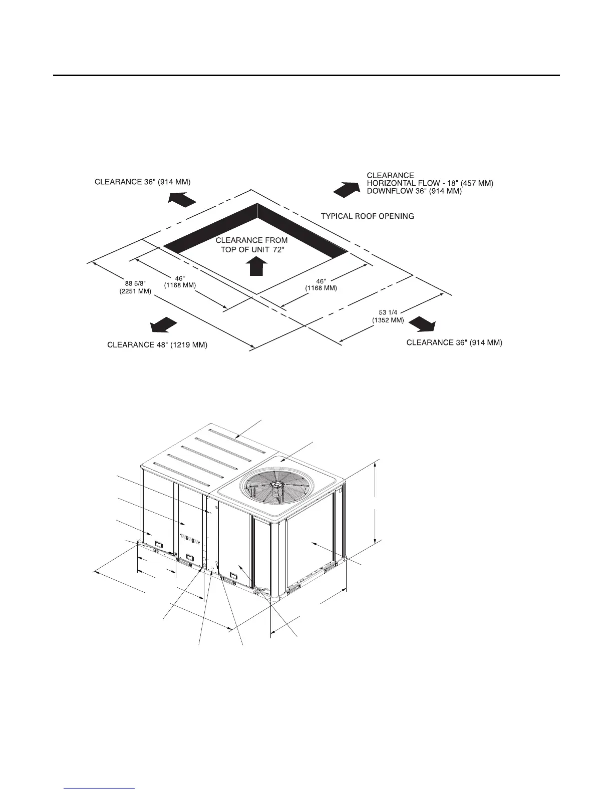
Unit Dimensions
20 RT-SVX21P-EN
Figure 10. ton (dual) - 10 tons standard efficiency,6-7½(MCHE) ton high efficiency, 6 ton dehumidification
unit clearance and roof opening
Note: All dimensions are in inches/millimeters.
Figure 11. 10 ton high efficiency
Notes:
1. All dimensions are in inches/millimeters.
2. ½ or ¾ NPT Gas Connection
ALTERNATE CONDENSATE DRAIN
CONNECTION 3/4-14 NPT DIA.HOLE
50 7/8”
1292 MM
63 3/16”
1605 MM
99 11/16”
2532 MM
CONDENSER COIL
UNIT POWER WIRE
1 3/8”
(
35MM
)
DIA. HOLE
EVAPORATOR SECTION
ACCESS PANEL
47 7/8”
1216 MM
27 5/8”
701 MM
1/2 NPT GAS CONNECTION
˄80 mbh, 120mbh˅;
3/4 NPT GAS CONNECTION
(
150mbh
,
200mbh
,
250mbh
)
COMPRESSOR ACCESS PANEL
SERVICE GAUGE PORT
ACCESS 1 3/8” (35MM) DIA.
HOLE
CONTROL BOX SECTION
ACCESS PANEL
UNIT CONTROL WIRE
7/8”
(
22MM
)
DIA HOLE
INDOOR TOP PANEL
OUTDOOR TOP PANEL
2” ELECTRICAL CONNECTION
(SINGLE POINT POWER WHEN
HEAT INSTALLED)
or

Table of Contents

Other manuals for Trane YHC072F

Related product manuals