EasyManua.ls Logo

Trane YHC120E - Page 17

Trane YHC120E
72 pages
Print Icon
To Next Page IconTo Next Page
To Next Page IconTo Next Page
To Previous Page IconTo Previous Page
To Previous Page IconTo Previous Page
Loading...
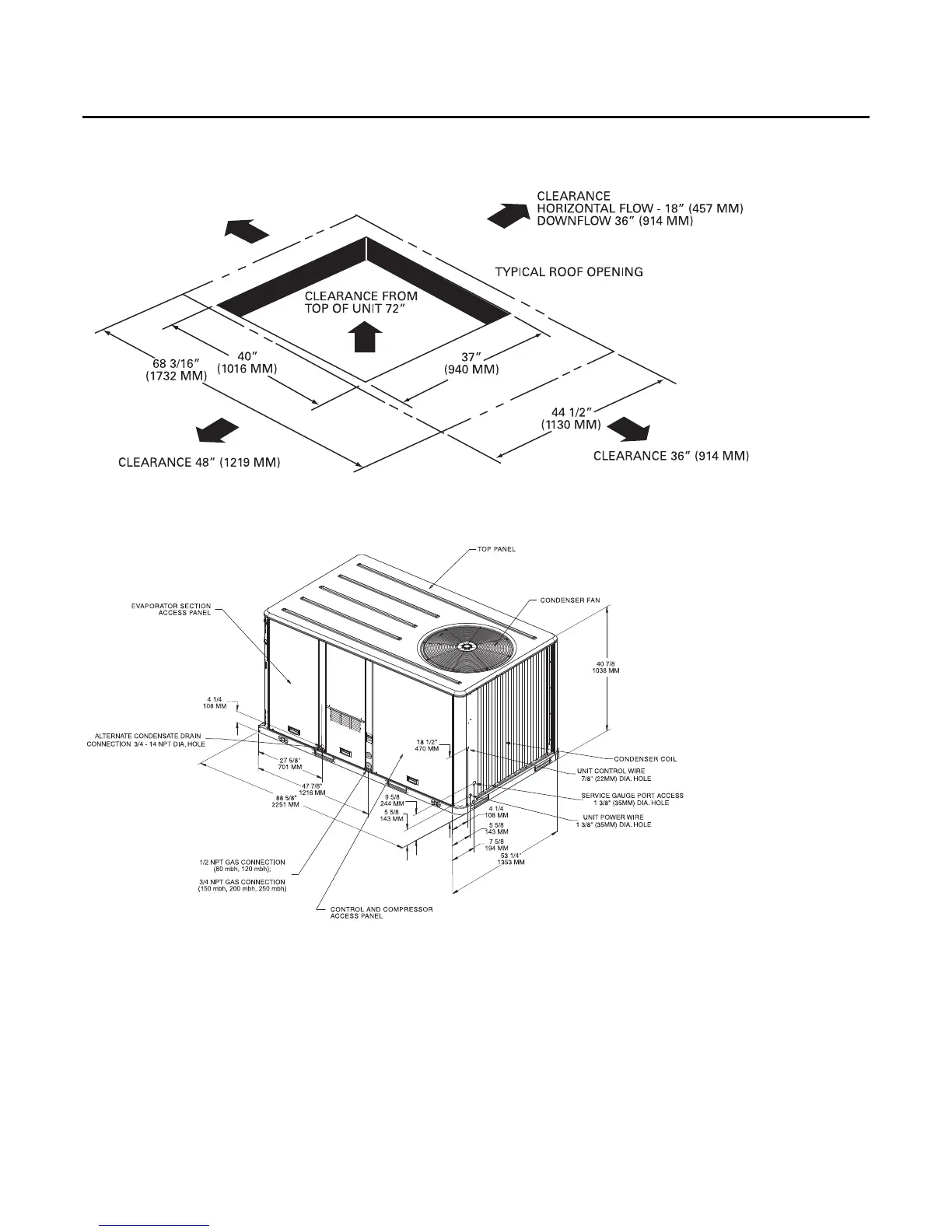
Unit Dimensions
RT-SVX21P-EN 17
Figure 4. 3-5 ton standard efficiency, 3 ton high efficiency - unit clearance and roof opening
Note: All dimensions are in inches/millimeters.
CLEARANCE 36” (914 MM)
Figure 5. 6, (single) ton standard efficiency, 4-5 ton high efficiency
Note: All dimensions are in inches/millimeters.

Table of Contents

Other manuals for Trane YHC120E

Related product manuals