EasyManua.ls Logo

TREND VSD2H - Control Connections

TREND VSD2H
12 pages
Print Icon
To Next Page IconTo Next Page
To Next Page IconTo Next Page
To Previous Page IconTo Previous Page
To Previous Page IconTo Previous Page
Loading...
VSD2H Variable Speed Drives Data Sheet TA201104 Issue 3, 08-Oct-2013 9
Data Sheet VSD2H
L1 L2 L3
DC-
V
W
U
L1 L2 L3
M
3~
R-
R+
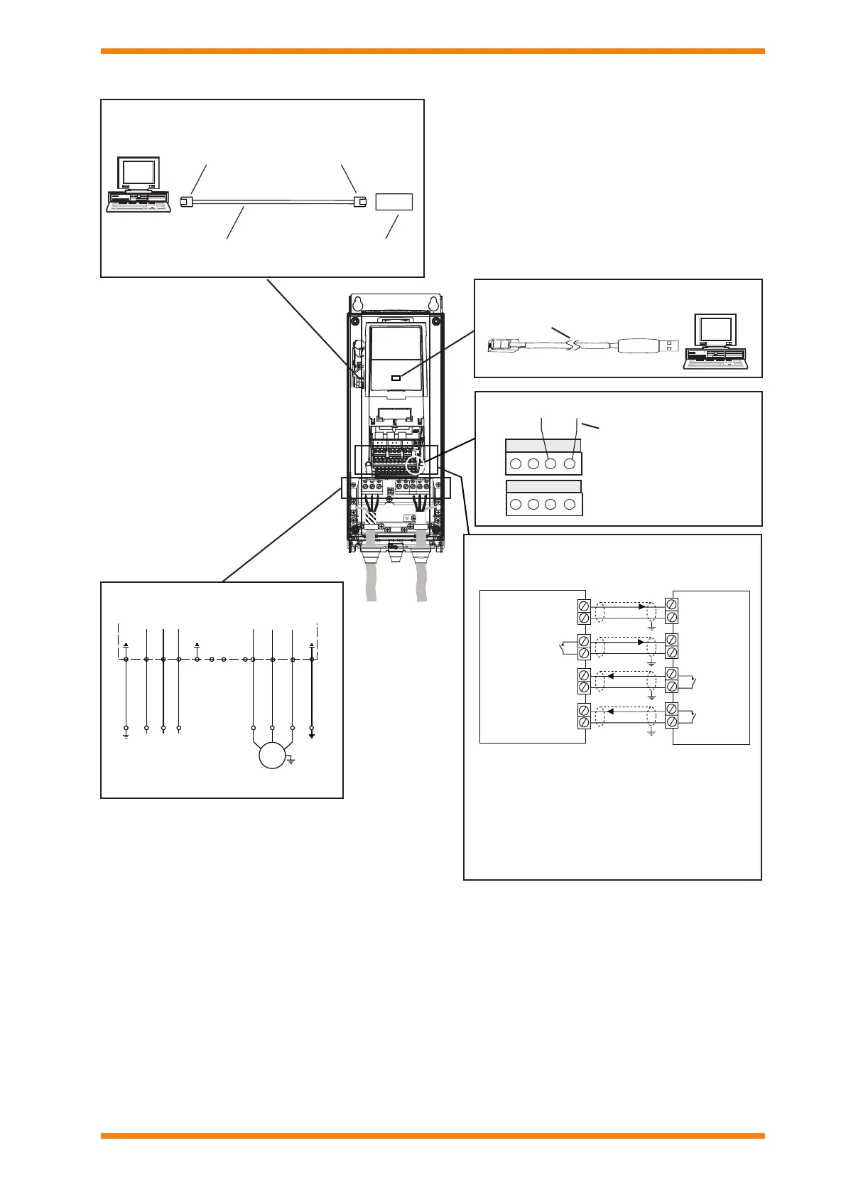
Power Connections
3 phase mains supply
motor connection
Control Connections
Connect according to conguration
USB
(connection to PC)
2
3
8
6
23
22
26
25
AI1+
AI1-
DI1
RO1/2 COM
RO1/3 NO
RO2/2 COM
RO2/3 NO
+24 V
AO SIG
AO 0 V
DO NO
DO COM
DI SIG
n
DI COM
n
DI SIG
n+1
DI COM
n+1
Voltage
Start forward
Running
Fault
Analogue Output
0 to 10V
Digital
Output
Digital
Input
Digital
Input
IQ Controller
VSD2H Drive
e.g connections to IQ Controller with default settings
RJ45
USB
Note that the NXNI interface connects the drive
directly to the an IQ system current loop Lan, and
the NXIP connects the drive to an IQ system Lan on
Ethernet. They both enable the drive to be monitored
and controlled by IQs (IC comms) and Supervisors
(Text comms) - see order codes for details. Note that
the NXNI allows the unit to be monitored by all Trend
IQ controllers, but it can only be written to by IQ3,
IQ4, or IQeco controllers.
ACC/VSD2H/USB-PC/CABLE
CONNECTIONS
RS485 (BACnet over MS/TP or MODBUS RTU)
8 9 10 11
19 30 AB
-
+
Ensure correct polarity
Use STP (Shielded Twisted
Pair), type Belden cable
9841 or similar.
Ethernet
(BACnet over IP or MODBUS TCP)
Connect to hub, or use crossover adaptor
Standard Ethernet cable
RJ45RJ45
XCITE/XA
crossover adaptor