Home
Trumeter
Cash Counter
7911
Page 22
Trumeter 7911 - Page 22
24 pages
Manual
Save Page as PDF
To Next Page
To Next Page
To Previous Page
To Previous Page
Loading...
22
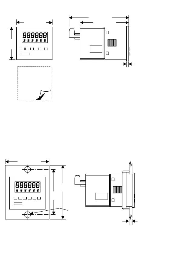
48mm
(1.89")
48mm (1.8
9")
83mm (3.2
7")
67mm (2.6
4")
3mm (0.12")
45 x
45mm
+0.6
mm -0mm
(1.77"
x 1.77"
+0.024"
-0")
60mm (2.36
")
4.3mm (0.1
7") Ø
<12mm
(0.48")
63mm
(2.48")
75mm
(2.95")
Dimensions, Abmessungen, Dimensiones, Dimensioni
Screw-fixed bezel, Frontrahmen mit
Schraubenbefestigung, Cadre à vis,
Marco fijado con tornillos, Cornice a vite
Fixing Clip, Befestigungs-klammer
,
Clip de fixation, Clip fijación,
Clip di fissaggio
21
23
Table of Contents
Main Page
Installation
2
Maintenance
2
Battery Replacement
2
Front Panel
3
Typical Installation Wiring
3
Specification
4
PROGRAMMING and OPERATION
4
Programming Flowchart
5
Wartung
6
Spezifikation
8
Entretien
10
Remplacement des Piles
10
Face Avant
11
Instalación
14
Mantenimiento
14
Cambio de las Pilas
14
Panel Frontal
15
Especificaciones
16
Installazione
18
Manutenzione
18
Sostituzione Delle Batterie
18
Pannello Frontale
19
Related product manuals
Trumeter 7931
40 pages
Trumeter Durant E4148793
40 pages