EasyManua.ls Logo

USSC APS1100B - Installation Location and Clearances; Clearance to Combustibles

USSC APS1100B
16 pages
Print Icon
To Next Page IconTo Next Page
To Next Page IconTo Next Page
To Previous Page IconTo Previous Page
To Previous Page IconTo Previous Page
Loading...
4
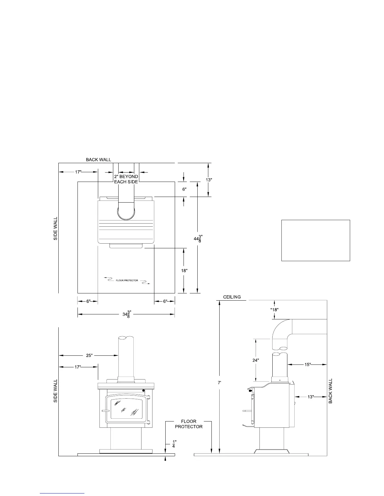
1. Keep the chimney connection as short as possible.
The heater must have its own chimney flue. Do not
connect any other appliance to the same flue. If there
is no chimney where you wish to place the heater, you
can use a UL 103 HT, Solid Fuel, Factory Built Chimney
or a code-approved masonry chimney.
2. Place the heater on solid masonry or solid concrete.
When the heater is used on a combustible floor, use a
floor protector of a non-combustible material extending
beneath the heater and must measure as figure below.
3. Check figures below. You should have at least the
clearances shown from the heater and the connector
pipe to combustible surfaces. If you have a solid brick
or stone wall behind your heater, you can place the
heater as close as you wish to the wall. If the wall is only
faced with brick or stone, treat it as a combustible wall.
LOCATING THE ROOM HEATER
AS A LOCATION IS SELECTED, KEEP THE FOLLOWING IN MIND:
MINIMUM CLEARANCE TO COMBUSTIBLES
FRONT VIEW
Fig. 3
SIDE VIEW
Fig. 4
TOP VIEW
Fig. 2
CAUTION
KEEP FURNISHINGS
AND OTHER COM-
BUSTIBLE MATERIALS
AWAY FROM THE
HEATER
MINIMUM CLEARANCES FOR CORNER INSTAL-
LATION IS 18 INCHES FROM THE CORNERS OF
THE HEATER TO THE NEAREST WALL
*Not Tested, NFPA Minimum

Related product manuals