EasyManua.ls Logo

Vacon FI9 - Installation Instructions for Cabling

Vacon FI9
102 pages
Print Icon
To Next Page IconTo Next Page
To Next Page IconTo Next Page
To Previous Page IconTo Previous Page
To Previous Page IconTo Previous Page
Loading...
cabling and connections vacon • 47
24-hour support: +358-(0)40-8371 150 • Email: vacon@vacon.com
6
6.1.2 Installation instructions
1
Before starting the installation, check that none of the components of the
inverter are live.
2
In accordance with protection class IP00 requirements. There is no need
to install the inverter cover if the inverter is installed in a cubicle,
separate cabinet or device space.
3
Place the motor cables sufficiently far from other cables:
Avoid placing the motor cables in long parallel lines with other
cables
If the motor cables runs in parallel with other cables, note the
minimum distances between the motor cables and other cables
given in the table below.
The given distances also apply between the motor cables and
signal cables of other systems.
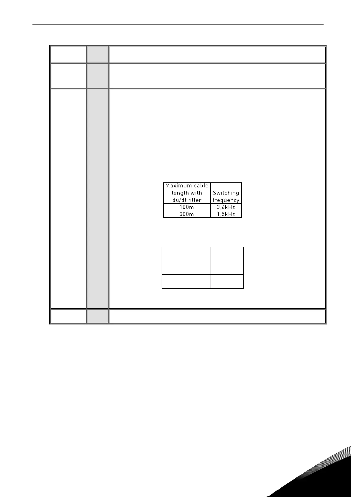
The maximum length of the motor cables is 300 m.
If output du/dt filters (+DUT option) are used the cable length is
limited according to the table below:
The motor cables should cross other cables at an angle of 90
degrees.
4
If cable insulation checks are needed, see Chapter 6.1.4.
Distance
between cables
[
m
]
Shielded
cable
[
m
]
0.3
50
1.0
200

Related product manuals