EasyManua.ls Logo

VADA VFB-HM110 - Page 28

Default Icon
56 pages
Print Icon
To Next Page IconTo Next Page
To Next Page IconTo Next Page
To Previous Page IconTo Previous Page
To Previous Page IconTo Previous Page
Loading...
25mm
isolation
valve
25mm
barrel union
25mm barrel union
25mm Y-Strainer
Solid level base
100mm
To house
25mm
isolation
valve
Mains pipe
min 25mm
From mains
House wall
VFB-DSU
Discharge pipe
min 25mm
Min 100mm
Flow
25mm
barrel union
Ground level
Solid base
House wall
100mm
Suction pipe
min 25mm
Foot valve
25mm
isolation
valve
25mm
barrel union
To house
25mm
isolation
valve
Mains pipe
min 25mm
From mains
VFB-DSU
Discharge pipe
min 25mm
Min 100mm
28 VADA FLOW BOSS HORIZONTAL MULTISTAGE PUMP VFB-HM110 INSTALLATION MANUAL
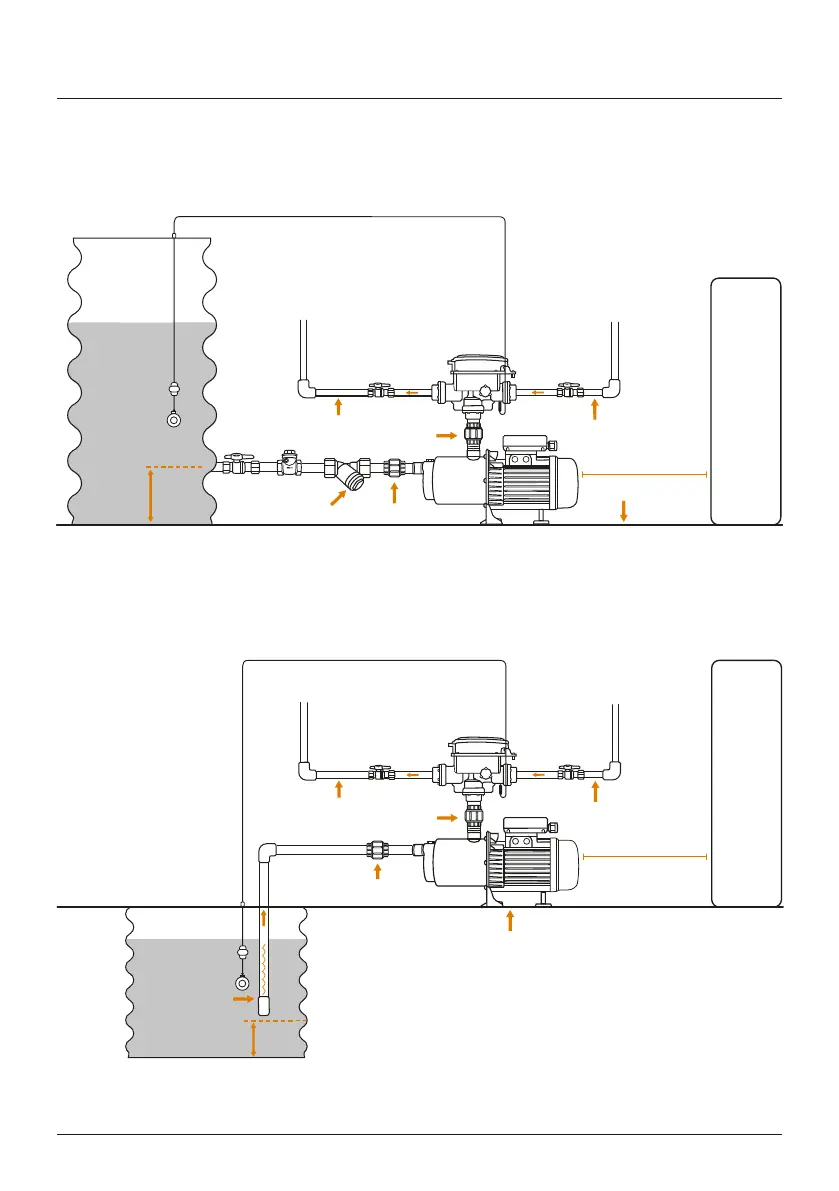
FLOW BOSS SET UP OPTIONS
Set up 3: Above Ground Digital Water Source Switching
Vada Flow Boss Horizontal Multistage Pump VFB-HM110
Vada Flow Boss Digital Water Switching Unit VFB-DSU
Set up 4: Above Ground Digital Water Source Switching
Vada Flow Boss Horizontal Multistage Pump VFB-HM110
Vada Flow Boss Digital Water Switching Unit VFB-DSU

Related product manuals