EasyManua.ls Logo

Vaillant ecoLEVEL - 4 Mounting; 4.1 Scope of delivery; 4.2 Selecting the installation site; 4.3 Dimensions and clearances

Vaillant ecoLEVEL
20 pages
Print Icon
To Next Page IconTo Next Page
To Next Page IconTo Next Page
To Previous Page IconTo Previous Page
To Previous Page IconTo Previous Page
Loading...
4 Installation and maintenance manual ecoLEVEL
4 Mounting
4.1 Scope of delivery
Description Dimensions Quantity
Condensate pump 180 x 160 x 100 mm 1
Wall plugs 5 mm 2
Screws 4 x 35 mm 2
Feed hose Ø 24 mm x 1.15 m 1
Discharge hose Ø 10 mm x 6 m 1
Wall bracket - 1
Wall bracket for drain hose - 6
Operating, Installation, and
maintenance manuals
-1
Table 4.1 Scope of delivery
The following tools are required for installation:
- Drill
- Drill bit (5 mm)
- Slot head screwdriver
- Water-level
- Cutting blade
- Tools for making electrical connections
4.2 Selecting the installation site
The ecoLEVEL condensate pump should be installed in
the room where the boiler is located.
The ambient room temperature must be between 5 °C
and 60 °C.
The pump should be fixed to a wall that is suitable for
installation using the provided mounting hardware. If a
suitable wall is not available, a suitable mounting surface
must be prepared.
The ecoLEVEL condensate pump should not be used as
a storage shelf.
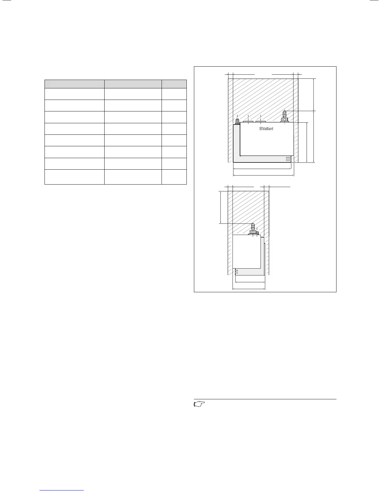
4.3 Dimensions and clearances
100 mm
90 mm
165 mm
115 mm
150 mm
175 mm
min. 200 mm
min. 5 mm min. 5 mm
min. 200 mm
min. 5 mm min. 5 mm
Fig. 4.1 Dimensions and installation spaces
4.4 Installing the wall bracket
Slide the pre-assembled wall bracket downward and
out of the condensate pump housing.
Install the wall bracket (as shown in Fig. 4.2) in a suita-
ble position below the point where the condensate
drains out of the boiler.
The wall bracket must be installed in a level position!
Use a spirit-level!
From above, slide the condensate pump straight down
along the guiding edges of the wall bracket.
A small hook at the lowest position catches the pump
and secures it in the wall bracket.
Note!
The condensate pump can be fastened to the
wall bracket (as shown in Fig. 4.1) either on its
narrow or on its wide side.
4 Mounting

Other manuals for Vaillant ecoLEVEL

Related product manuals