EasyManua.ls Logo

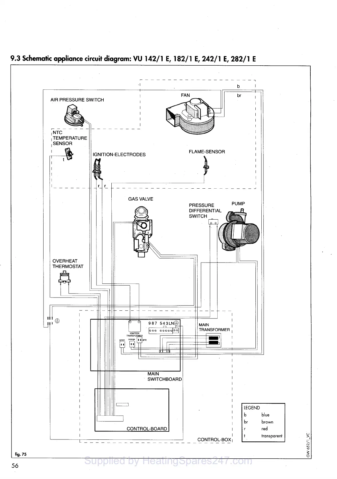
Vaillant thermocompact vu 142/1 e - Schematic Appliance Circuit Diagram

Vaillant thermocompact vu 142/1 e
162 pages
Print Icon
To Next Page IconTo Next Page
To Next Page IconTo Next Page
To Previous Page IconTo Previous Page
To Previous Page IconTo Previous Page
Loading...
Supplied by HeatingSpares247.com

Table of Contents

Related product manuals