EasyManua.ls Logo

Valore Cascade VCA-E30AS - Specifications and Dimensions

Valore Cascade VCA-E30AS
66 pages
Print Icon
To Next Page IconTo Next Page
To Next Page IconTo Next Page
To Previous Page IconTo Previous Page
To Previous Page IconTo Previous Page
Loading...
8
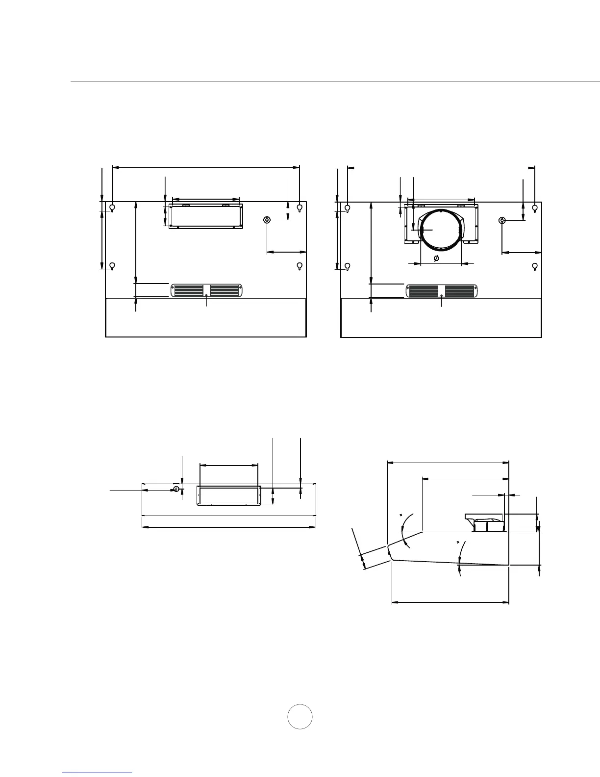
Installation – Specifi cations
elec.
k/o
TOP
6” Round Ducting
BACK
SIDE
27 13/16”
2”
8 5/8”
12 3/16”
3/4”
4 3/16”
6”
10”
2 3/4”
5 7/8”
5 7/8”
7/8”
elec.
k/o
10”
3 1/4”
11/16”
29 7/8”
20 3/16”
14 3/8”
3/4”
5 1/2”
3”
19 3/8”
2 1/2”
21.6
2.5
C/L of
6” duct
1 7/16”
Air Recirculating Louver Plate
27 13/16”
2”
8 5/8”
12 3/16”
3/4”
10”
2 3/4”
5 7/8”
elec.
k/o
1 7/16”
Air Recirculating Louver Plate
3 1/4”
TOP
3 1/4”x10” Rect. Ducting

Related product manuals