EasyManua.ls Logo

Valore Cascade VCA-E30AS - Page 54

Valore Cascade VCA-E30AS
66 pages
Print Icon
To Next Page IconTo Next Page
To Next Page IconTo Next Page
To Previous Page IconTo Previous Page
To Previous Page IconTo Previous Page
Loading...
8
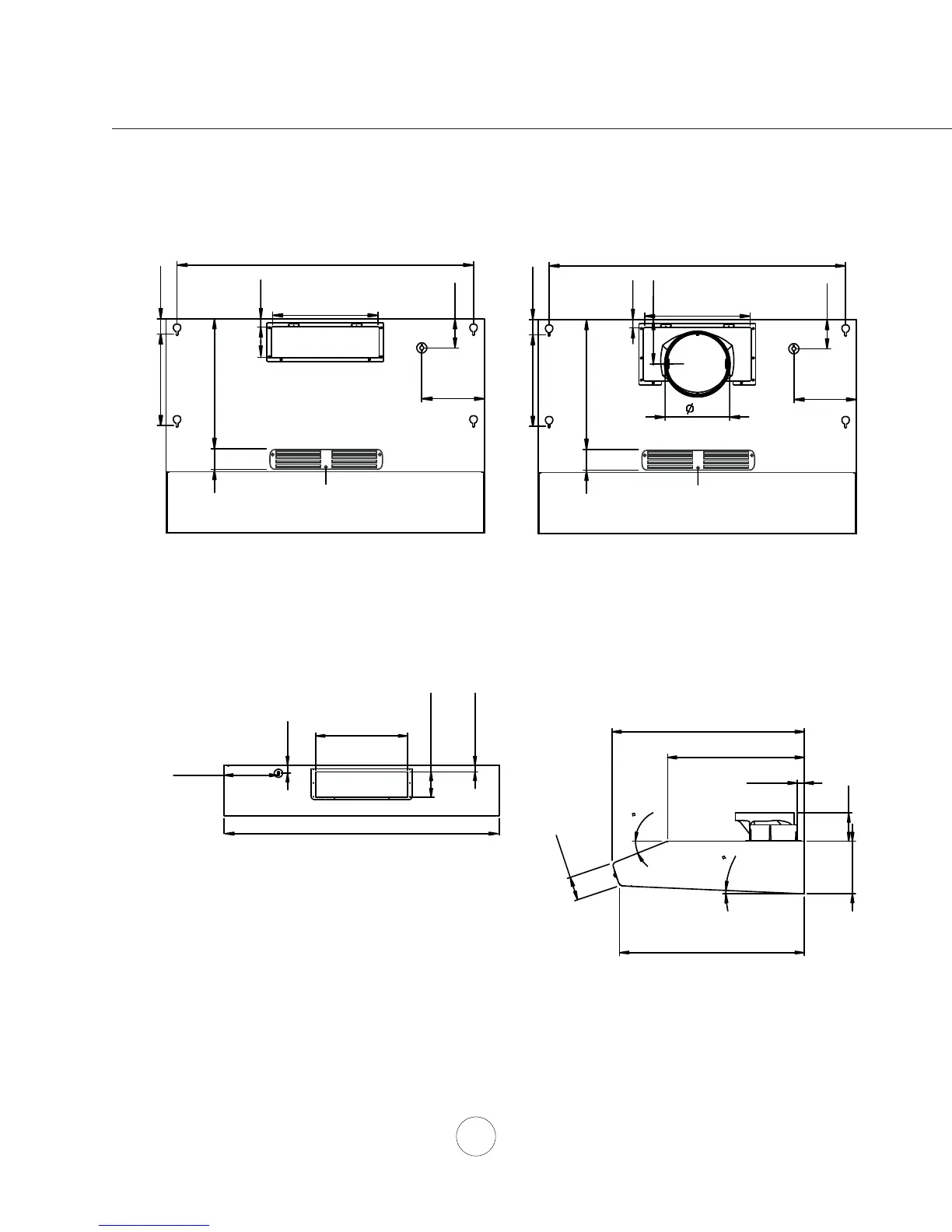
Installation – 
Entrée
défonçablepour élec.
HAUT
Conduit circ. de 6"
ARRIÈRE
CÔTÉ
27 13/16”
2”
8 5/8”
12 3/16”
3/4”
4 3/16”
6”
10”
2 3/4”
5 7/8”
5 7/8”
7/8”
Entrée défonçable
pour élec.
10”
3 1/4”
11/16”
29 7/8”
20 3/16”
14 3/8”
3/4”
5 1/2”
3”
19 3/8”
2 1/2”
21.6
2.5
L/C de
conduit
de 6"
1 7/16”
Grille d’aération de recirculation
27 13/16”
2”
8 5/8”
12 3/16”
3/4”
10”
2 3/4”
5 7/8”
Entrée défonçable
pour élec.
1 7/16”
Grille d’aération de recirculation
3 1/4”
HAUT
Conduit rect. de 3¼" x 10"

Related product manuals