EasyManua.ls Logo

Varec 6700 - Page 13

Varec 6700
74 pages
Print Icon
To Next Page IconTo Next Page
To Next Page IconTo Next Page
To Previous Page IconTo Previous Page
To Previous Page IconTo Previous Page
Loading...
Introduction
Varec, Inc. 5
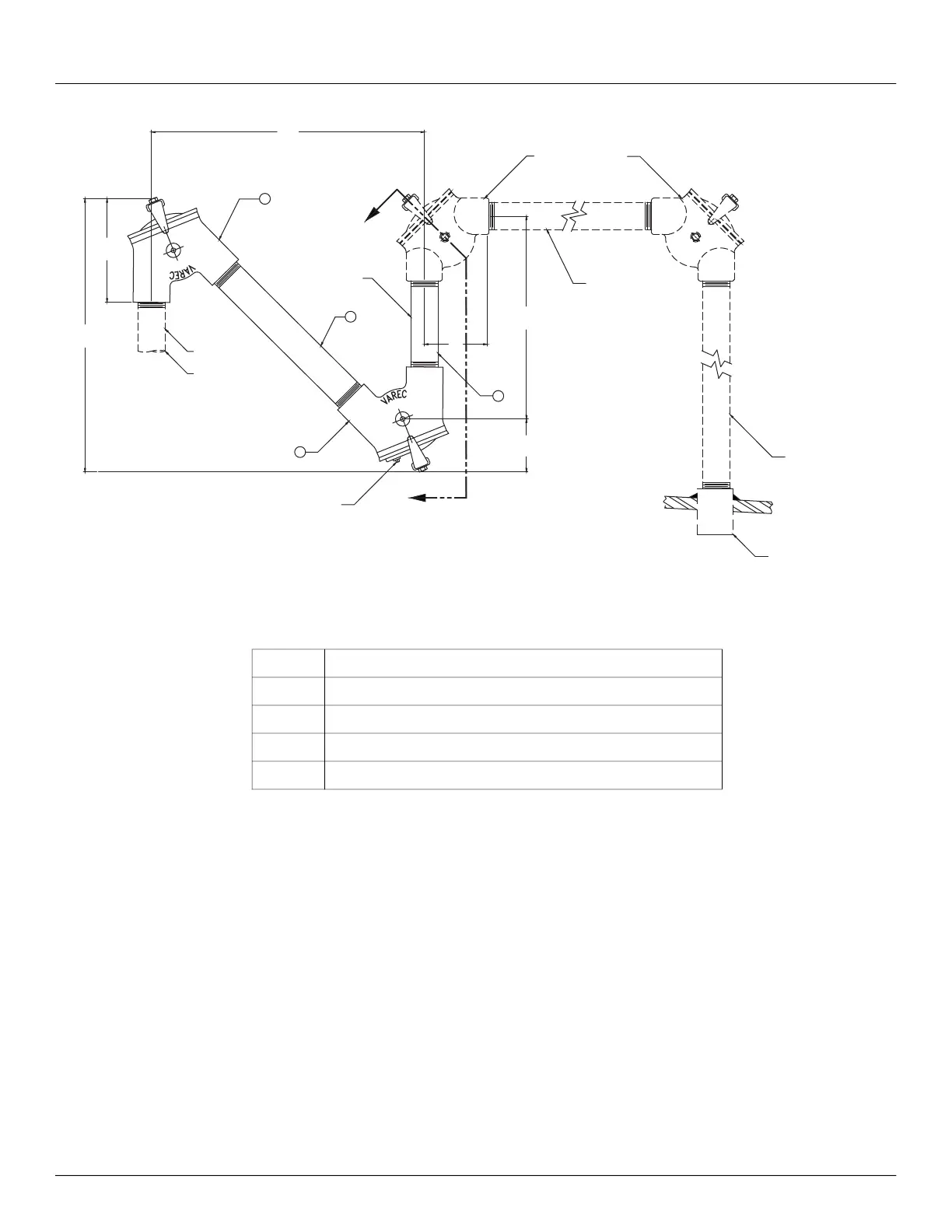
Figure 3: Oil Seal, Severe Service, 8.5-inch Water Column, Alternative Configuration
A
1-1/2 NPT COUPLING
(BY CUSTOMER)
1-1/2 NPT BOTH ENDS
STAINLESS STEEL PIPE
(BY CUSTOMER)
1-1/2 NPT STAINLESS
STEEL PIPE
(BY CUSTOMER)
90° STAINLESS STEEL
ELBOW FURNISHED
WITH LEVEL INDICATOR KIT
13.62
[346]
4.50
[114]
4.06
[103]
2
4
1
1/2 NPT DRAIN PLUG
TO GAUGEBOARD
OR GAUGEHEAD
1-1/2 NPT CARBON
STEEL PIPE
(BY CUSTOMER)
CUSTOMER REPLACE WITH
STAINLESS STEEL PIPE
3
20.56
[522]
7.70
[196]
19.69
[500]
Table 3: Parts for Oil Seal, Severe Service, 8.5-inch Water Column
Item No. Description
1 Pipe, 1-1/2" x 15.50 [394], Carbon steel, NPT ends (Long)
2 Pipe, 1-1/2" x 7.25 [184], NPT Ends (Short)
3 135
° Aluminum Sheave Elbow
4 135
° Aluminum Sheave Elbow with Elbow

Table of Contents