EasyManua.ls Logo

veito FLOW - Page 9

veito FLOW
Print Icon
To Next Page IconTo Next Page
To Next Page IconTo Next Page
To Previous Page IconTo Previous Page
To Previous Page IconTo Previous Page
Loading...
TR
-9-
Elektrik Bağlantısı (Sadece Yetkili Bir Teknisyen Tarafından) :
Lütfen dikkat!
Elektrik bağlantısı geçerli ulusal düzenlemeler ya da yerel elektrik dağıtım
şirketi tarafından belirlenmiş yerel düzenlemeler doğrultusunda yapılmalıdır.
Elektrikli ani su ısıtıcısı, koruma sınıfı I olan bir cihazdır ve mutlaka koruyucu
toprak hattına bağlanmalıdır!
Elektrik bağlantılarını yapmadan önce bütün su bağlantıları tamamlanmış
olmalıdır!
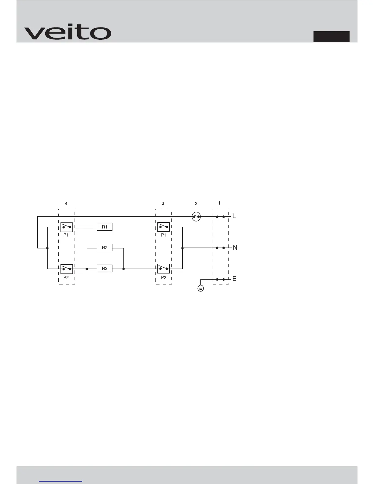
Cihazı aşağıda verilen elektriksel bağlantı şemasına uygun olarak bağlantı
klemensi üzerinde bağlayınız.
L Faz Kablosu
N Nötr Kablosu
E Koruyucu Toprak Kablosu
1 Elektrik bağlantı klemensi
2 Termal devre kesici
3 Kademe anahtarı
4 Hidroşalter
P1,P2 SPST anahtarlar
R1 2.5 - 3 kW ısıtma elemanı
R2 2.5 - 3 kW ısıtma elemanı
R3 2.5 - 3 kW ısıtma elemanı
Cihazın besleme gerilimi 220 - 240 VAC olmalıdır.
Cihazın elektriksel değerleri, üzerindeki etikette gösterilmektedir.
Elektrik kabloları zarar görmemelidir. Montajdan sonra kablolar direkt
ulaşılacak şekilde bırakılmamalıdır.
Elektrik kablosu gerilme kuvvetine maruz kalmamalıdır.
Cihaz her bağlantı noktasında en az 3 mm iletim yüzeyi bulunan uygun
biçimde izole edilmiş kablo ile ana elektrik şebekesine sürekli bağlı kalacak
şekilde montaj edilmeli ve elektrik kaçağına karşı önlem alınmadan
çalıştırılmamalıdır.

Related product manuals