EasyManua.ls Logo

Venting VHBQi-D015TFA - Page 8

Venting VHBQi-D015TFA
22 pages
Print Icon
To Next Page IconTo Next Page
To Next Page IconTo Next Page
To Previous Page IconTo Previous Page
To Previous Page IconTo Previous Page
Loading...
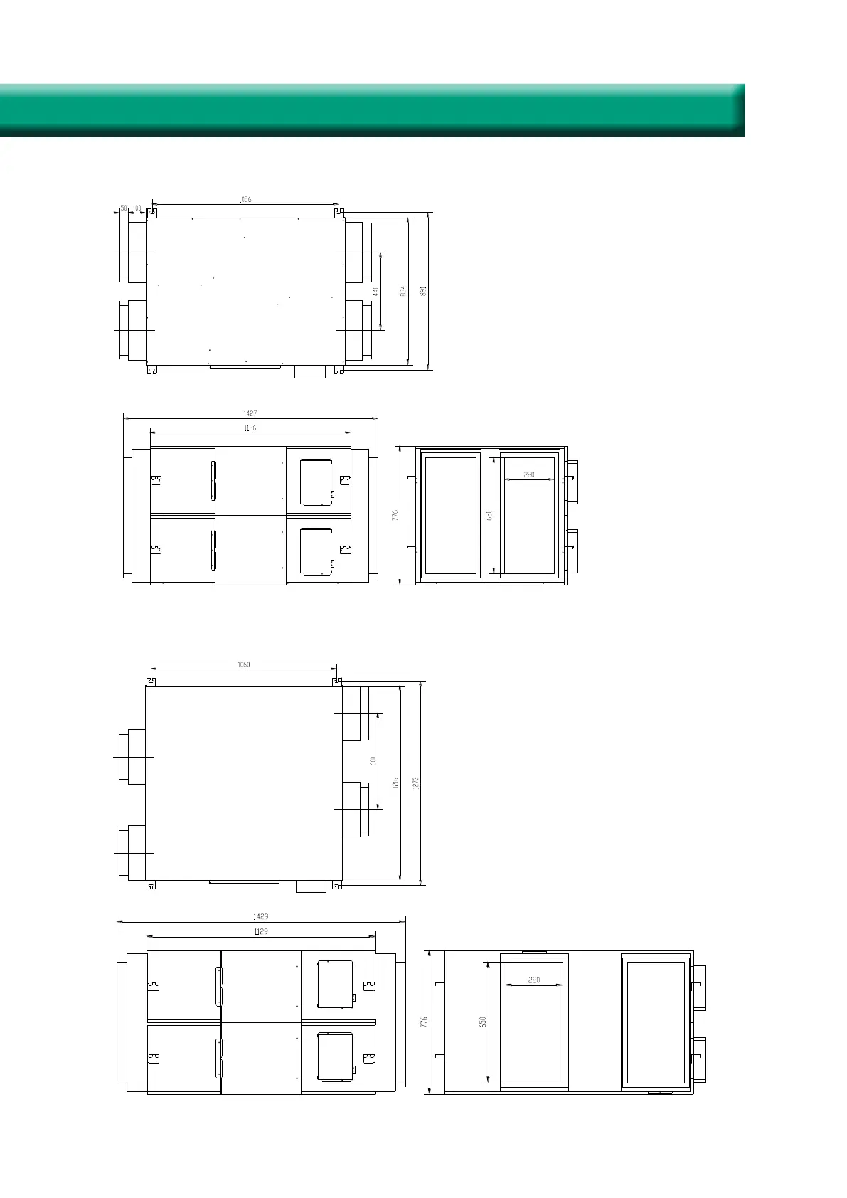
Dimensioned Drawings
VENTING VHBQi-D150TFA
8
北京环都人工环境科技有限公司
设计
编号
校对
审核型号
名称
项目
名称
数量
新风换气机
XHBQ-D15TZ
台湾日立
H-110728-20
1
焓回收率%
功率 KW
57
0.8
噪声 dB(A)
41
电压 V
220
重量 Kg
130
电流 A
5.6
机外余压Pa
75
1500
风量m
3
/h
温度回收率 %
68
制冷
制热
55
特高
1500 1260
100 70
55 58
57 64
68 75
44 39
OA
EA
SA
RA
北京环都人工环境科技有限公司
设计
编号
校对
审核型号
名称
项目
名称
数量
新风换气机
XHBQ-D15TZ
台湾日立
H-110728-20
1
焓回收率%
功率 KW
57
0.8
噪声 dB(A)
41
电压 V
220
重量 Kg
130
电流 A
5.6
机外余压Pa
75
1500
风量m
3
/h
温度回收率 %
68
制冷
制热
55
特高
1500 1260
100 70
55 58
57 64
68 75
44 39
OA
EA
SA
RA
VENTING VHBQi-D200TFA
北京环都人工环境科技有限公司
设计
编号
校对
审核型号
名称
项目
名称
数量
新风换气机
XHBQ-D20TZ
台湾日立
H-110728-21
1
焓回收率%
KW
61
0.8
dB(A)
44
V
220
Kg
175
A
6.6
外余压Pa
68
2000
风量m
3
/h
度回收率 %
69
制冷
制热
57
特高
2000 1600
95 58
57 60
61 63
69 75
48 40
SA
RA
OA
EA
北京环都人工环境科技有限公司
设计
编号
校对
审核型号
名称
项目
名称
数量
新风换气机
XHBQ-D20TZ
台湾日立
H-110728-21
1
焓回收率%
KW
61
0.8
dB(A)
44
V
220
Kg
175
A
6.6
外余压Pa
68
2000
风量m
3
/h
度回收率 %
69
制冷
制热
57
特高
2000 1600
95 58
57 60
61 63
69 75
48 40
SA
RA
OA
EA