EasyManua.ls Logo

Ventis OCV-RR-36 - Fireplace Location Selection

Default Icon
36 pages
Print Icon
To Next Page IconTo Next Page
To Next Page IconTo Next Page
To Previous Page IconTo Previous Page
To Previous Page IconTo Previous Page
Loading...
Ventis Forever Firebox – OCV-RR-36/42 – 07-10-2020 rev4 4
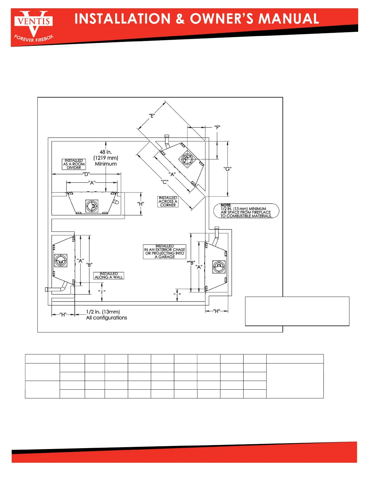
3. Fireplace Location Selection
This fireplace can be installed as a room divider, across a corner wall, along a standard wall, or in an
exterior chase or projecting into a garage.
Figure 1.1 shows the 4 installation examples from above with framing dimensions
Note: Measurements are framing dimensions only and do not include drywall in either the cavity of on
the interior walls.
Model Units A B C D E F G H I
OCV-RR-36
inches 42 50 67-7/8 59-1/2 34 14 48 21-1/2
12 in. (305 mm)
Min from fireplace
opening to any
perpendicular wall.
mm 1067 1270 1724 1511 864 356 1219 546
OCV-RR-42
inches 48 56 73-7/8 65-1/2 37-1/4 17 52-1/4 21-1/2
mm 1219 1422 1876 1664 946 432 1327 546
Locating the fireplace near frequently opened doors, a central heat outlet or other areas that have
considerable air movement can affect the fireplace performance.
Please take these factors into consideration prior to deciding on a location.
*8” of extra space required for optional
outside air connection. If no outside air
is being used, ½ in. minimum clearance
to fireplace sides is to be maintained.

Table of Contents

Related product manuals